Uncover Spacious Living in This Four-Bedroom Haven with Endless Possibilities!
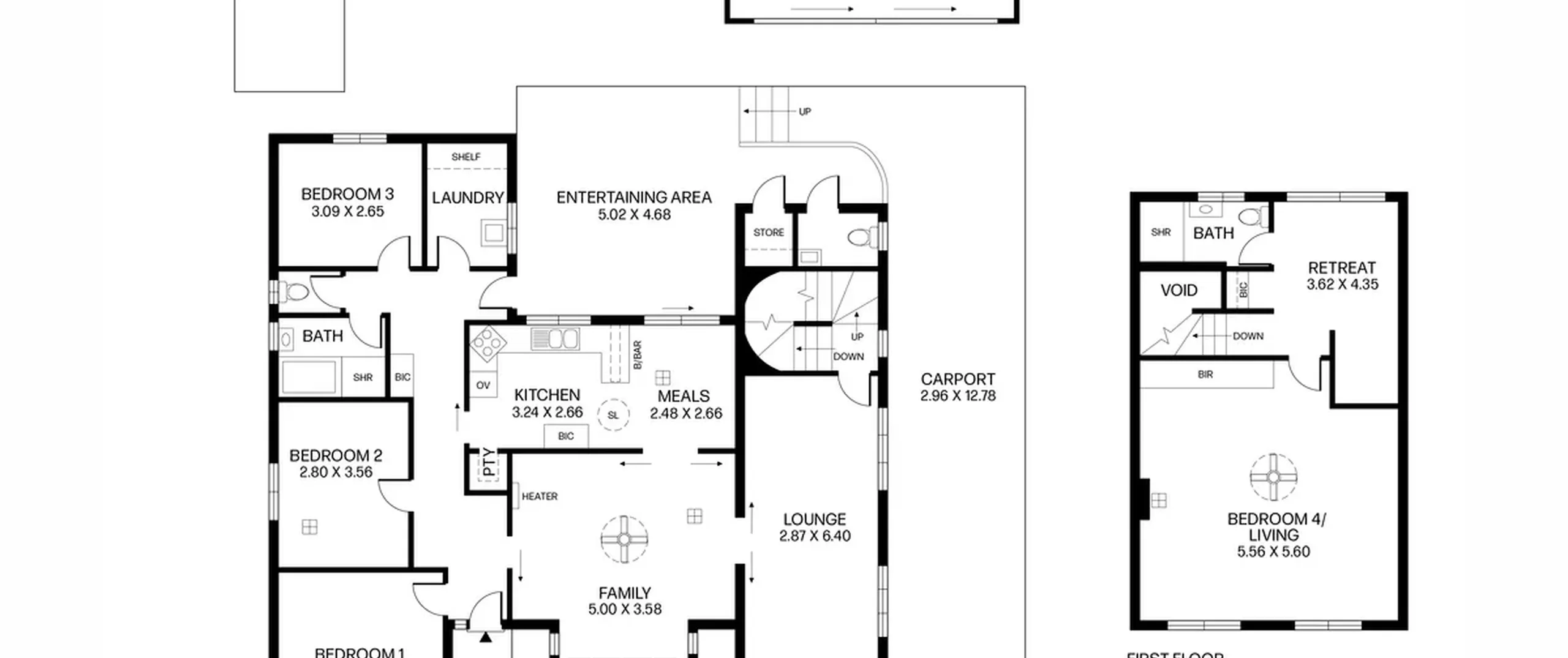
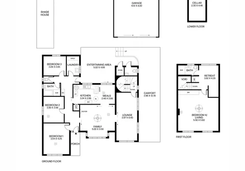
Experience the epitome of spacious living in the highly sought-after suburb of Highbury with this expansive and versatile home. The property features three bedrooms plus a private level that includes a sizable fourth bedroom, or ideal for use as an additional living space or a tenant retreat with its own bathroom.
At the heart of the home, a spacious family room, adorned with a ceiling fan, effortlessly transitions into both the meals area and a neutral kitchen fitted with a gas cooktop. The kitchen has ample storage and provides a view of the expansive rear yard. The convenience is further enhanced by the presence of an additional lounge room, an original main bathroom, a separate toilet, and a laundry.
Outside, car enthusiasts and storage enthusiasts will appreciate the large garage with double sliding doors, while the extensive backyard invites those with a green thumb to indulge in gardening pleasures. A pitched roof pergola in the outdoor entertaining space provides a perfect haven to savour your morning coffee, with an additional toilet enhancing the practicality of the rear yard. Furthermore, the property offers a shade house, potting shed and a cellar, ideal for storage purposes.
Elevate your living experience beyond the ordinary – this residence is more than just a home; it's a blank canvas, ready for your personal touch. Infuse your unique style into every corner of this spacious Highbury haven, creating a retreat that authentically reflects your taste.
Features that make this home special:
- Three good-sized bedrooms
- Private level with a large bedroom with ceiling fan or you can choose to utilise as an additional living space or a tenant retreat with its own bathroom
- Generous family room with a ceiling fan, seamlessly connecting to meals and a neutral kitchen with a gas cooktop
- Original bathroom with a separate toilet for added convenience
- Separate laundry
- Undercover parking
- Large garage with a sliding door, perfect for car and DIY enthusiasts or storage needs
- Expansive backyard complemented by a pitched roof pergola for outdoor entertaining
- Additional toilet in the rear yard
- Ducted air-conditioning
- Gas heating
- Additional toilet and store room outdoors
- Shade house and potting shed
- Cellar
Superbly located only minutes away from all the shopping and entertainment that Westfield Tea Tree Plaza has to offer. In close proximity to the wonderful River Torrens Linear Reserve, Black Hill Conservation Park and public transport options including the O-Bahn at Tea Tree Plaza Interchange. Additionally close by to a variety of excellent schools, including Highbury Primary, St Ignatius' College and Kildare College.
All information contained herewith, including but not limited to the general property description, price and the address, is provided to Boffo Real Estate by third parties. We have obtained this information from sources we believe to be reliable; however, we have not verified and do not guarantee its accuracy. The information contained should not be relied upon and you should make your own enquiries and seek advice in respect of this property or any property on this website.
The Vendor's Statement (Form 1), the Auction Contract and the Conditions of Sale will be available for perusal by members of the public - (A) at our office located at 78-80 North East Road, Walkerville for at least 3 consecutive business days immediately preceding the auction; and (B) at the place at which the auction is to be conducted for at least 30 minutes immediately before the auction commences.
RLA 313174
