Spacious Family Abode with Swimming Pool!
Offers Closing - Tuesday 20th April at 5pm
A fantastic opportunity is on offer to secure this stylish and spacious double brick family home set amongst other quality homes in the suburb of Happy Valley. Thoughtfully designed, this home provides multiple year round entertaining options with perfect natural flow from the internal living areas to the striking outdoor entertaining area and serene swimming pool. Set on a substantial 880sqm (approximate) allotment, this property ticks all the boxes a homeowner would be looking for and perfect for first home buyers, growing families and investors, with nothing left to do but move in and enjoy!
Meticulously maintained and combining neutral décor and modern fixtures, the home delivers a brilliant lifestyle with walking trails and reserves located in close proximity including the Happy Valley Reservoir which is set to open soon!
Features that make this home special:
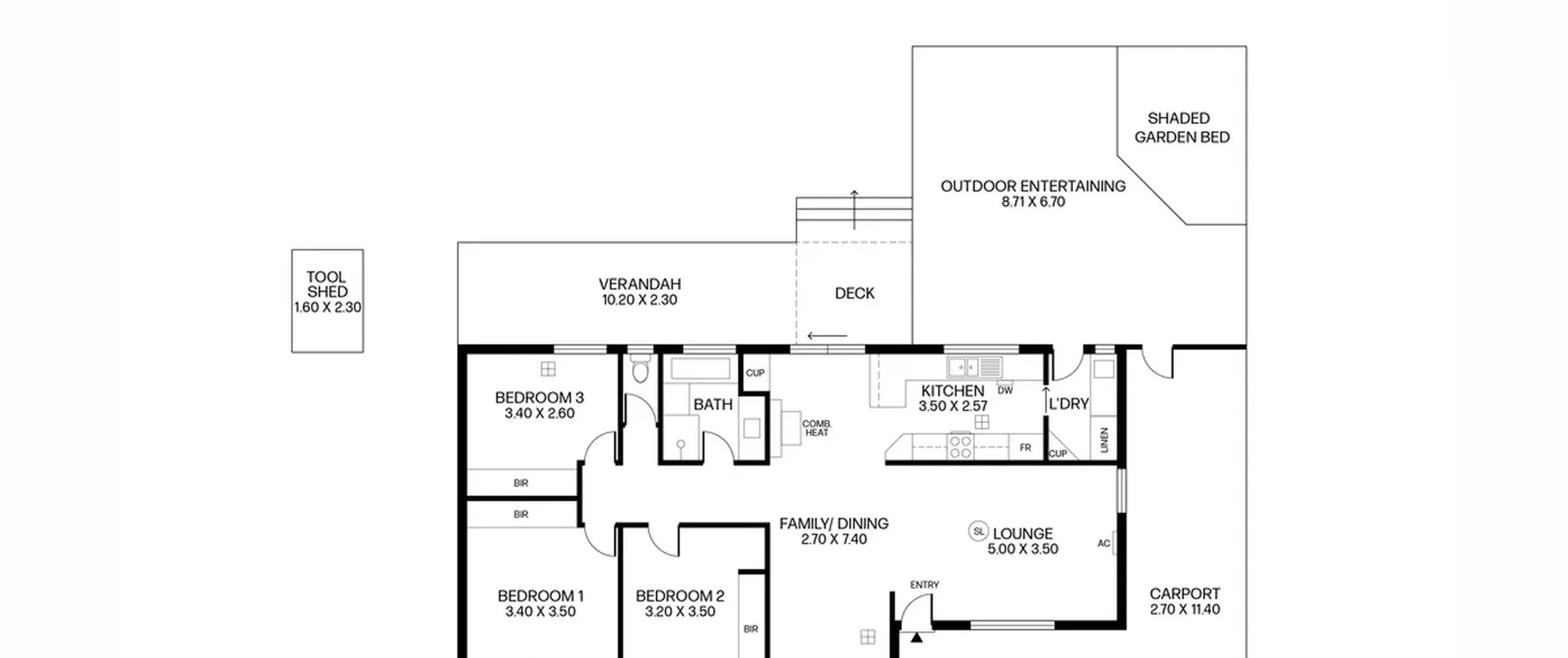
- Large master bedroom with built-in robe and roller shutters
- Bedroom 2 and 3 of good size, complete with built-in robes, bedroom 2 with roller shutter
- Spacious lounge room upon entry with skylight
- Light-filled family and dining area with combustion heater
- Modern kitchen with gas cooktop, double stainless steel sink, dishwasher and ample cupboard and bench space
- Modern and fresh bathroom with separate shower and bath, compete with floor to ceiling tiles and skylight
- Separate toilet
- Separate laundry with linen press
- Valuable rumpus room at rear, perfect for the kids to enjoy
- Impressive outdoor entertaining area with pitched roof pergola and shaded garden bed
- Additional verandah and deck
- Tranquil underground swimming pool with verandah, perfect for summer entertaining
- Well manicured front and rear gardens
- Tool shed + rainwater tank
- Extensive carport with automatic roller door and space for 2 cars and a trailer
- Ducted reverse cycle air-conditioning
- Solar Electrical System with 14 panels
Superbly located just a short drive to some of Adelaide’s best beaches, including Port Noarlunga, Christies Beach and Moana Beach. Within close proximity from all the shopping and entertainment that Westfield Marion and Colonnades Shopping Centre have to offer. Within walking distance to reserves, recreation and sports centres and a variety of excellent public and private schools, including Happy Valley and Braeview Primary School. Additionally only 30 minutes (approximately) to the CBD and in close proximity to the ever popular McLaren Vale wine region with an abundance of restaurants and wineries for you to enjoy, this is the lifestyle you have been longing for!
For further information please contact Fadi Oudih on 0455 999 007, Paul Leombruno on 0439 160 161 or 8269 7711 (office).
RLA 200591
