Redevelopment Opportunity (STCC)
Detonate and Re-Develop!
Of exciting interest is the potential to use the site to demolish and explore all the potential, or build your dream home, situated on a generous 788sqm (approximate), with a wide 18.29m (approximate) frontage and 42.97 (approximate) depth.
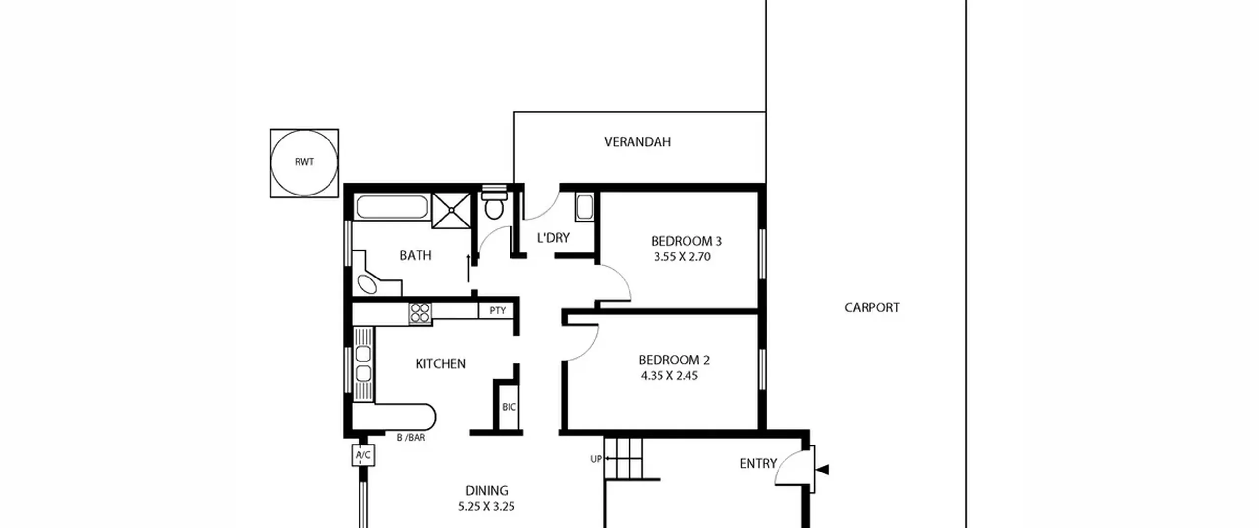
Existing 3 bedroom home with bathroom and 2 separate driveways on both sides of the block with crossovers already in place.
Located within walking distance to shopping centres, a variety of public and private schools and public transport options including buses and the Klemzig O-Bahn Interchange. Set less than 8kms (approximately) to the CBD and North Adelaide and the Adelaide Oval Riverbank precinct. Playgrounds and Parks are only a short stroll away. Linear Park and walking trails are also nearby. This is a prime property in close proximity to all that you need.
For further information please contact Warwick Haseloff on 0499 111 996 or 8269 7711 (office).
RLA 200591
