Family Comfort Meets Entertaining Style!
Nestled at the end of a peaceful cul-de-sac, this generous family home is just a short stroll from Cobbler Creek Recreation Park and the exciting Kites and Kestrels Adventure Playground – perfect for fun and relaxation for all ages.
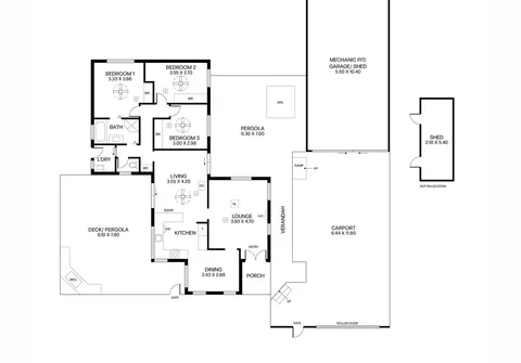
Situated on a generous 681sqm (approximate) allotment with a wide 23m (approximate) frontage and providing a light filled layout with multiple living spaces that can be utilised to suit your own family’s needs.
Outdoors, two distinct entertaining areas extend from either side of the kitchen and living space - one is a large, decked undercover area with a pitched roof, while the other boasts a spa, perfect for hosting family and friends.
Additionally, providing ample off-street parking for multiple vehicles including your caravan, boat or trailer.
Ideal for moving in and enjoying right away or a great option for investors looking to rent out and reap the rewards.
Features that make this home special:
- Master bedroom complete with built-in robe, ceiling fan and convenient access to the bathroom
- Additional two bedrooms both complete with built-in robes and ceiling fans
- Spacious, light filled living room with split system air conditioner
- Formal dining room that seamlessly connects to the kitchen
- Valuable second living with ceiling fan and gas heater
- Kitchen featuring a dishwasher, breakfast bar and window looking out to the outdoor entertaining area
- Modern bathroom with bath, shower and separate toilet for convenience
- Laundry with rear yard access
- Expansive pitched roof pergola with built-in BBQ area; perfect for outdoor entertaining
- Additional entertaining area with spa
- Sunlit backyard with garden beds
- Double length carport with drive through access to garage/shed
- Garden shed
- Rental potential of $590 to $630 (approximately) per week
Perfectly positioned near scenic parks, reserves and a selection of outstanding public and private schools, including Kings Baptist Grammar School and Gulfview Heights Primary School. Enjoy the convenience of being just 5.4km (approximately) from Golden Grove Village Shopping Centre and only 8.1km (approximately) from the vibrant entertainment and retail hub of Tea Tree Plaza. With excellent public transport options nearby, including the O-Bahn for a quick and easy commute to the Adelaide CBD, this location offers both lifestyle and accessibility.
All information contained herewith, including but not limited to the general property description, price and the address, is provided to Boffo Real Estate by third parties. We have obtained this information from sources we believe to be reliable; however, we have not verified and do not guarantee its accuracy. The information contained herewith should not be relied upon and you should make your own enquiries and seek advice in respect of this property or any property on this website.
Looking to purchase this property as an investment? Speak to our Property Management team to see how we can assist.
RLA 313174
