There’s no place like home!
This substantial 1415sqm (approximate) solid brick house will have you feeling completely and utterly at home. Boasting stunning views, natural flow and a wide range of entertaining area’s this home is sure to impress from the moment you step inside.
Located in the sought after suburb of Gulfview Heights, this family entertainer will appeal to couples, investors and growing families wanting to upgrade. Utilising its practical layout, all the family can enjoy their own separate areas or spend some quality time with all the family and take a dip in the pool. There is nothing to do but move in and start enjoying the lifestyle this property offers!
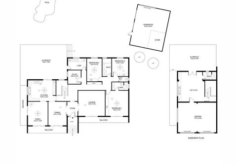
First Floor comprising of:
- Master bedroom with balcony access, timber sliding robe, ceiling fan and ensuite, featuring; semi-frameless shower screen and full height tiling
- Generous sized bedrooms 2 & 3, both with ceiling fans and built in robes
- Additional forth bedroom or study
- Commodious formal lounge
- Light filled family room with ceiling fan, open fire place and balcony access
- Formal dining area
- Updated U-shaped kitchen, featuring; granite benchtop & splashback, profile joinery doors, double sink and stainless steel appliances
- Modern main bathroom with double basin, full height tiling, tiled surround to bath and feature mosaic tiles
- Separate toilet for convenience
- Spacious laundry containing in-built joinery and double sink
- Alfresco overlooking rear yard
Basement comprising of:
- Second kitchen for accessibility/entertaining
- Ducted reverse cycle air conditioning
- Third bathroom
- Fully covered entertainers alfresco
- Secure rear yard with manicured gardens
- In ground swimming pool and spa
- Workshop/Store with possibility of additional parking
- 2 Rainwater tanks
- Double garage with automatic roller doors
Located in close proximity to parks, reserves and a variety of excellent public and private schools including Gulfview Heights Primary School. Just 5kms (approximately) to Golden Grove Village Shopping Centre and only 10 minutes (approximately) to all the entertainment and shopping that Westfield Tea Tree Plaza has to offer. Public transport options including The O-Bahn to the Adelaide CBD are also nearby.
You don't want to miss this!
For further information please contact Jacob Lanning on 0417 876 879 or 8269 7711 (office).
RLA 200591
