Hallmark Quality
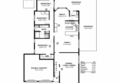
Now released for the most fastidious buyer is this immaculate residence which sits on a block of 494sqm (approximately) amongst other lovely homes with plenty of street appeal. This residence boasts generous proportions, premium fixtures and fittings, and the SHOW STOPPER is the immense and elegant L-shaped outdoor entertainment area. The modern tones throughout the home effortlessly combine the contemporary with the practical whilst offering a wonderful sense of space and natural light. The property boasts a brilliant floorplan and accommodation all set on one level with spectacular low maintenance gardens and sunshine in all the right places.
Features that make this home special:
- Large master bedroom with walk-in robe
- Generous sized bedrooms 2 and 3, both with built-in robe
- Enormous, light-filled formal living and dining room
- Spacious family room with 2-year-old gas space heater
- Modern, stylish kitchen with stainless steel Blanco appliances, gas cooktop, dishwasher and breakfast bar
- Separate meals area
- Three-way bathroom with separate bath and shower + separate toilet
- Separate spacious laundry
- Ducted evaporative cooling throughout
- Stunning, expansive L-shaped verandah, perfect for outdoor entertaining
- Low maintenance gardens and garden shed
- Double garage with roller doors
Located within easy walking distance to parks, local sporting clubs and a variety of schools. Conveniently only a short walk to Greenwith Shopping centre and public transport options taking you directly to the CBD. All of this and just a short drive to The Stables Shopping Centre and The Village Shopping Centre!
For further information please contact Annamaria Varelias on 0487 487 383 or 8269 7711 (office).
RLA 200591
