Stop Looking and Start Living!
Experience the charm of this light-filled, spacious three-bedroom home. Featuring brand new carpet and freshly painted throughout, this inviting residence offers two generous living areas perfect for entertaining family and friends.
Welcome to 2A Moreshead Street, Greenacres!
Features that make this home special:
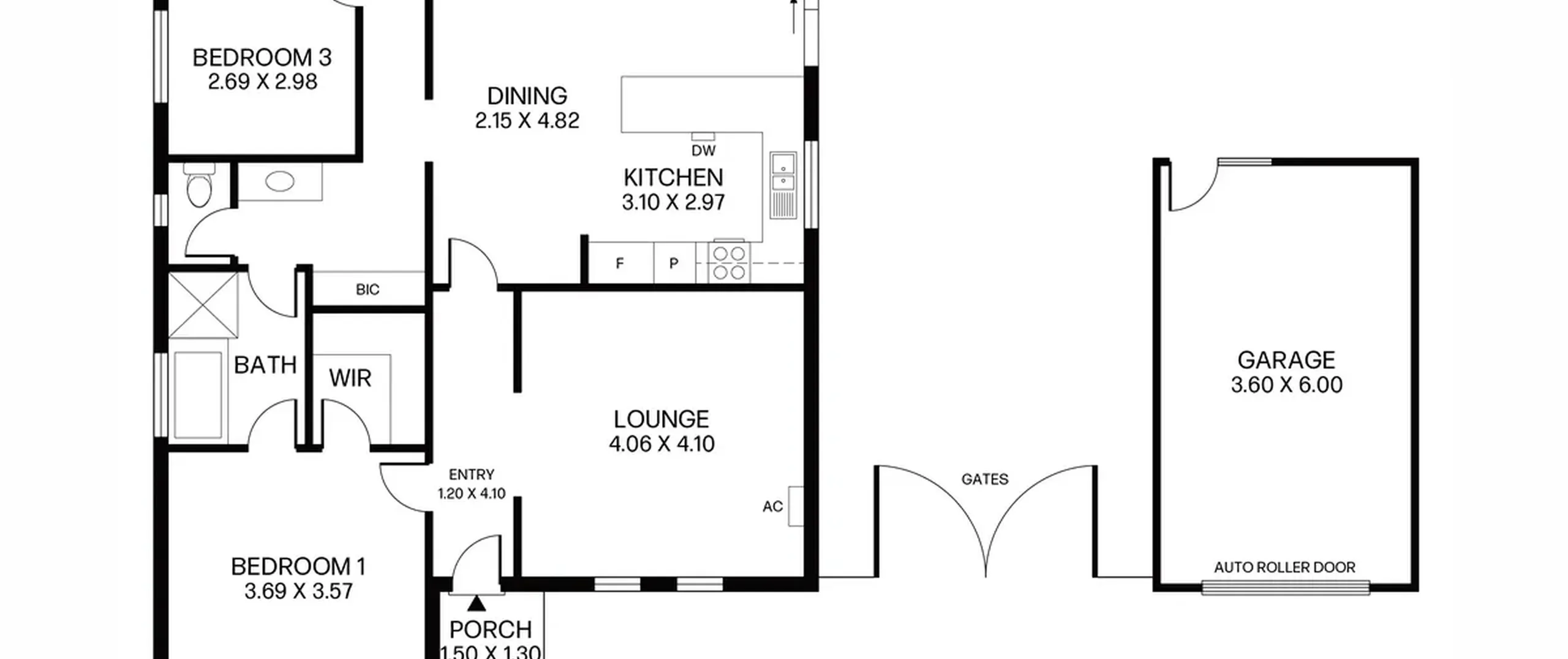
- Three bedrooms, master with walk in robe and 2-way bathroom access
- Bedroom 2 & 3 both have built in robes
- Bathroom has shower and bath with separate W.C. and vanity
- Open plan kitchen providing gas cook top and electric oven, dishwasher and plenty of cupboards and bench space
- Open plan family and meals area with sliding door access to outside garden and play area
- Separate laundry
- Separate single garage with auto roller door.
- Easy low maintenance grounds
- Year built 2012 (approx.)
- Land size 463m2 (approximate)
Located in a highly sought-after neighborhood, this modern and versatile 3-bedroom, home is just minutes away from good shopping, dining, and entertainment options. Close to Hampstead Primary School, St Martin’s School and Cedar College. Greenacres Reserve provides playgrounds and oval. Don't miss out on this amazing opportunity to own a beautiful and functional home that's perfect for modern living!
All information provided has been obtained from sources we believe to be accurate, however, we cannot provide any guarantee and we accept no liability for any errors or omissions (including but not limited to a property's land size, floor plans and size, building age and condition). Interested parties should make their own inquiries and obtain their own legal advice.
The Vendor's Statement (Form 1), the Auction Contract and the Conditions of Sale will be available for perusal by members of the public - (A) at our office located at 78-80 North East Road, Walkerville for at least 3 consecutive business days immediately preceding the auction; and (B) at the place at which the auction is to be conducted for at least 30 minutes immediately before the auction commences.
RLA 313174
