Stylish Contemporary Living!
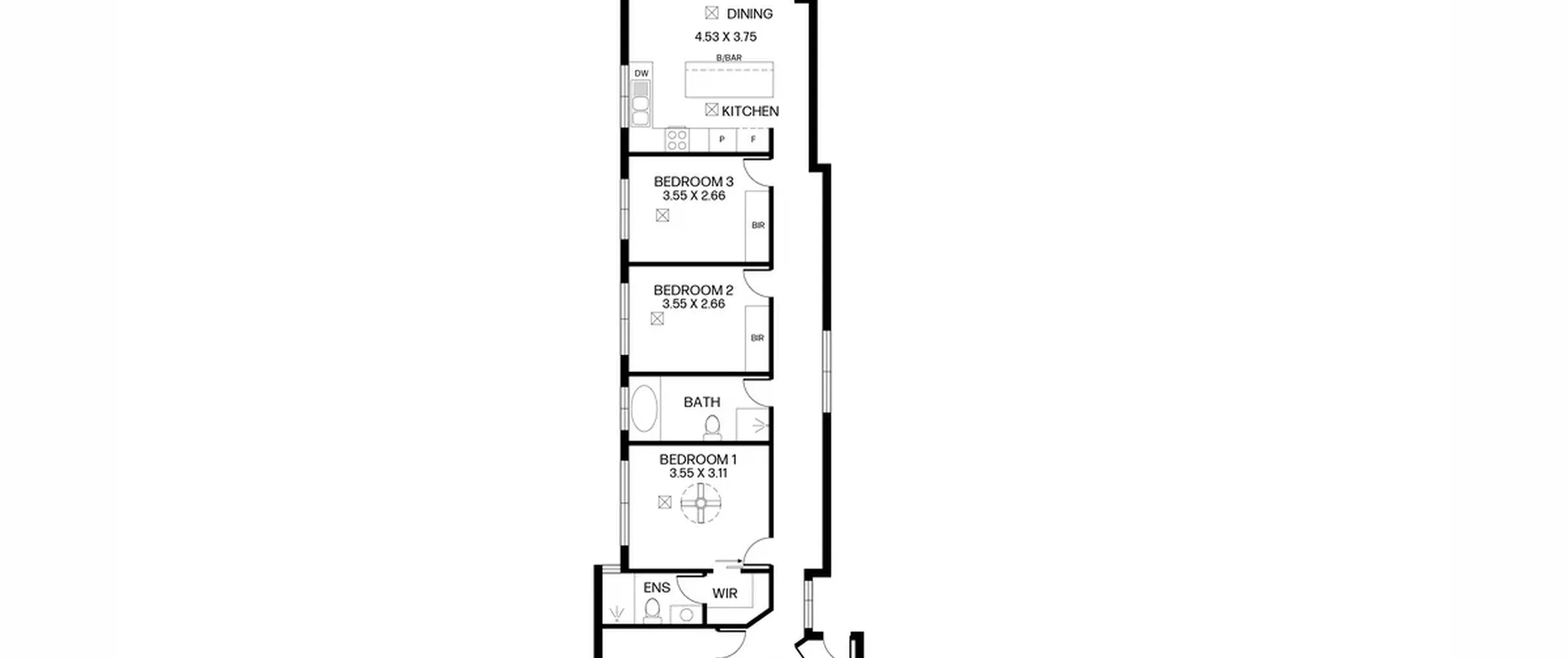
All the contemporary comforts you could ever wish for are yours to enjoy in this show-stopping family home. Built with quality in mind, the functional floor plan has been designed for the modern buyer and offers three bedrooms, two bathrooms and multiple light filled living spaces.
Come home and enjoy the light, bright and neutral decor throughout, with a stunning and stylish kitchen that boasts gas cooking and plenty of cupboard and bench space. The practical floor plan draws you through to the living and dining room, from here, you can move outside to the pergola and relax as the kids or pets play in the fully fenced and maintained yard.
Set on a 330sqm (approximate) allotment, this incredible home is only moments from the Greenacres Reserve and Tennis Courts, St Martin’s Catholic Primary School and Hampstead Primary School with shops, restaurants and the Adelaide CBD all within easy reach.
Features that make this home special:
- Well-sized main bedroom complete with ceiling fan, walk-in robe and ensuite
- Bedrooms 2 and 3 of good size and offering built-in robes
- Light filled lounge with double door entry
- Open plan living and dining boasting ample natural light, on-trend flooring and ceiling fan for added comfort
- Stylish modern kitchen featuring breakfast bar, stainless steel appliances and plenty of cupboard and bench space
- Centrally located main bathroom with bath and separate shower
- Practical laundry with built-in joinery and external access
- Ducted reverse cycle air conditioning
- Solar panels
- Alarm system
- Gas point for an outdoor kitchen
- Rainwater provision
- Verandah with pergola extension, perfect for hosting guests outdoors
- Fully fenced, low maintenance backyard with well-kept gardens
- Single garage with roller door and internal access
Superbly located only 8.5kms (approximately) from the Adelaide CBD and only minutes away from a variety of shopping centres including Greenacres, Northpark, Regency Plaza and Sefton Plaza. Within walking distance to Greenacres Reserve, Lightsview Adventure Playground and public transport on North East Road. Additionally in close proximity to a variety of excellent public and private schools, including Prospect North Primary, Our Lady of the Sacred Heart College, Enfield Primary, Hampstead Primary and Roma Mitchell Secondary College.
For further information please contact Graeme Brown on 0455 111 791, Gavin Apacible on 0447 888 177 or 8269 7711 (office).
All information contained herewith, including but not limited to the general property description, price and the address, is provided to Boffo Real Estate by third parties. We have obtained this information from sources we believe to be reliable; however, we have not verified and do not guarantee its accuracy. The information contained should not be relied upon and you should make your own enquiries and seek advice in respect of this property or any property on this website.
The Vendor's Statement (Form 1), the Auction Contract and the Conditions of Sale will be available for perusal by members of the public - (A) at our office located at 78-80 North East Road, Walkerville for at least 3 consecutive business days immediately preceding the auction; and (B) at the place at which the auction is to be conducted for at least 30 minutes immediately before the auction commences.
RLA 313174
