Coastal Family Living
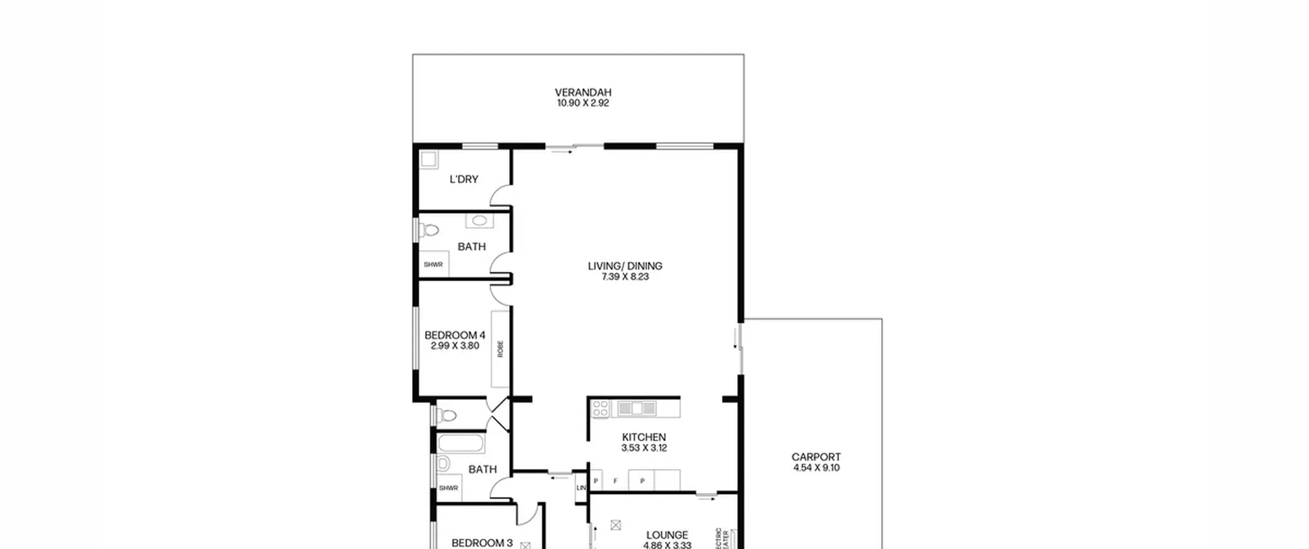
A prime opportunity exists to secure a fantastic family home situated in the sought-after suburb of Grange. Offering a four bedroom and two bathroom layout, there is space for the whole family to enjoy. The property provides plenty of room for your caravan, boat or trailer with the option of carport parking or additional space in the rear garage. Astute buyers will surely be impressed with this well-maintained property and the potential to add further value.
A spacious lounge is nestled just off the entry while delicious dinners can be prepared in the practical kitchen which features ample cupboard space and overlooks the open plan living and dining. Completing the layout is two well-appointed bathrooms and a practical laundry.
Outside, you can enjoy endless hours of relaxation under the verandah entertaining area and access to the good-size backyard. There’s also a garden shed for added storage and a sizeable garage for your next project. All this is set on a generous 739sqm (approximate) allotment!
Features that make this home special:
- Spacious main bedroom with large built-in robe
- Good sized bedrooms 2, 3 and 4; bedroom 4 with built-in robe and direct access to two-way bathroom
- Spacious formal lounge with beautiful flooring and gas heater with feature mantel piece
- Light filled open living/dining and kitchen with glass sliding door leading to the backyard
- Practical kitchen featuring standalone gas oven and cooktop and complete with ample cupboard space
- Two-way main bathroom with bath, separate shower and separate toilet
- Valuable second bathroom featuring floor to ceiling tiles
- Separate laundry
- Ducted air conditioning
- Large paved verandah with room for outdoor entertaining
- Spacious low-maintenance backyard with garden shed
- Large detached garage
- Single carport with roller door and both internal and external access
Ideally located only 2km (approximately) to Grange Jetty and providing entertainment, boutique shopping and plenty of dining options. Positioned conveniently close to quality schools including Grange Primary & St Michael's College, local shops on Grange Road, the West Lakes Shopping precinct and within walking distance to public transport.
For further information contact Gabriel Titmarsh on 0497 191 000, Leisa Da Silva on 0488 222 882 or 8269 7711 (office).
All information provided has been obtained from sources we believe to be accurate, however, we cannot provide any guarantee and we accept no liability for any errors or omissions (including but not limited to a property's land size, floor plans and size, building age and condition). Interested parties should make their own inquiries and obtain their own legal advice.
RLA 313174
