Contemporary Townhouse Packed with Features and Comforts!
Live your best life indoors and outdoors with this stunning two-storey townhouse. Whether you’re a young family, a downsizer or you’re on the hunt for a set-and-forget investment, this is for you.
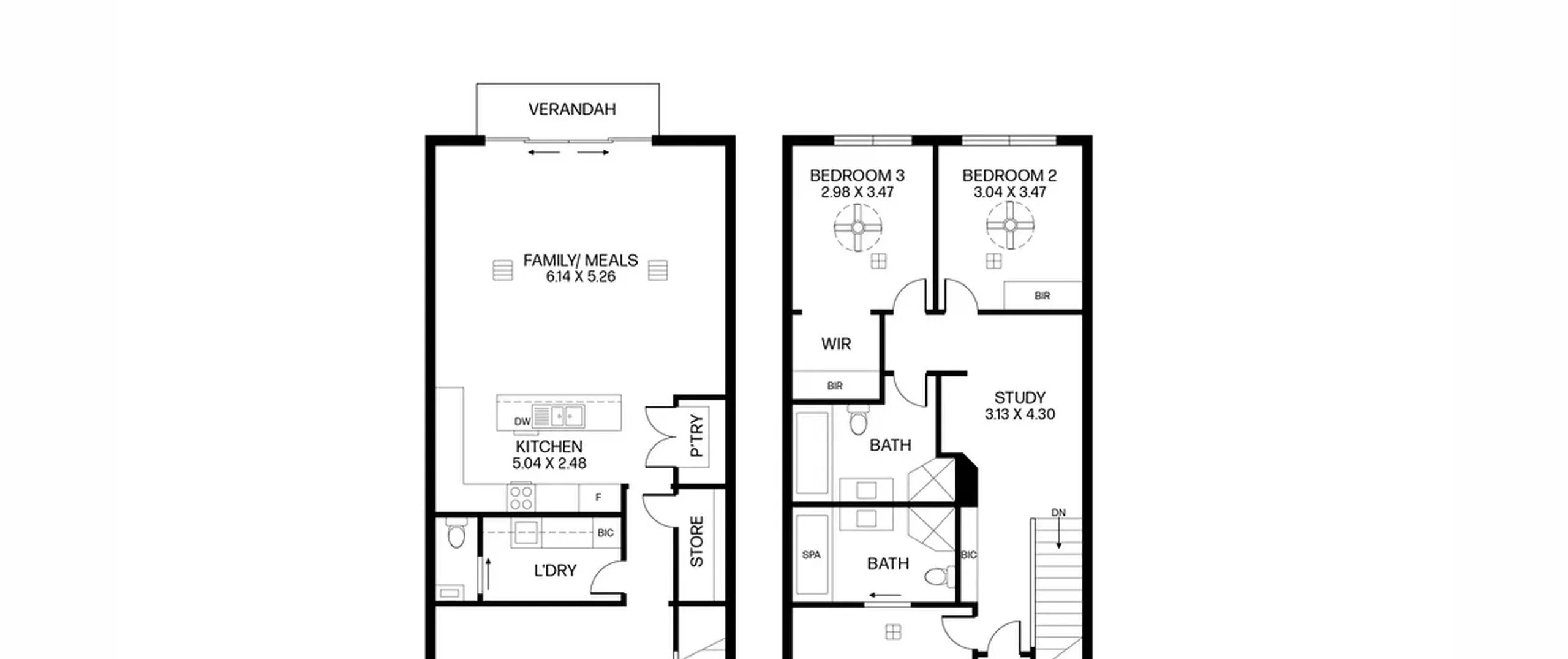
The impressive ground level is spacious and open, with the kitchen and meals area leading to the private and easy-care courtyard. The stylish kitchen is fully equipped, including a gas cook top, dishwasher, double sink, ample cabinetry and a sweeping breakfast bar.
All three bedrooms are set on the upper level with the master offering a walk-in robe, ensuite with spa and a private balcony. Bedrooms two and three are serviced by a central bathroom.
The extensive list of features includes ducted air-conditioning, a ground floor powder room, separate laundry and an automatic roller door double garage with drive-through access. Both primary and high schools are within easy walking distance and you can be in the centre of Golden Grove in minutes.
Upper level comprising of:
- Light filled master bedroom complete with large walk-in robe, ensuite with spa bath, ceiling fan and private balcony
- Bedroom 2 offering built-in robes and bedroom 3 with a walk-in robe, both with ceiling fans
- Valuable study nook
- Modern main bathroom with bath and separate shower
- Ducted air conditioning throughout
- Convenient storage area
Lower level comprising of:
- Spacious open plan family and meals with sliding door to courtyard
- Stylish kitchen featuring breakfast bar, dishwasher, gas cooktop, double sink and ample cupboard and bench space
- Formal lounge room greeting your guests
- Powder room, providing a valuable 3rd toilet
- Separate laundry
- Ducted air conditioning throughout
- Fully fenced, low maintenance courtyard
- Double garage with additional storage, automatic roller door and access to rear yard as well as drive through access
Superbly located only minutes away from all the shopping and entertainment that The Grove Shopping Centre and Westfield Tea Tree Plaza have to offer. Within walking distance to public transport options, a variety of local parks and excellent public and private schools including Gleeson College, Pedare Christian College, Golden Grove High School and Primary School.
For further information, please contact Jayden Kirk on 0448 225 517 or 8269 7711 (office).
All information provided has been obtained from sources we believe to be accurate, however, we cannot provide any guarantee and we accept no liability for any errors or omissions (including but not limited to a property's land size, floor plans and size, building age and condition). Interested parties should make their own inquiries and obtain their own legal advice.
RLA 200591
