Location, Location!
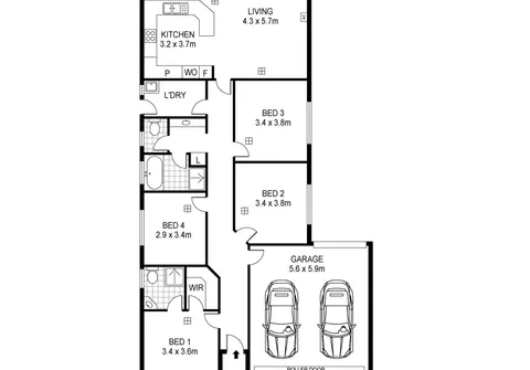
This delightful, low maintenance courtyard home features a flexible floorplan of 4 bedrooms or 3 bedrooms plus an extra living room. Located in a street where pride of ownership is evident, your opportunity awaits!
Features that make this home special;
- Master bedroom with ensuite and walk-in robe
- Good sized bedrooms 2, 3 and 4
- Open plan, tiled kitchen/living/meals area
- Spacious kitchen with gas cooking and ample bench and cupboard space
- 3-way main bathroom with separate bath and shower + separate w/c
- Separate laundry
- Neutral décor
- Ducted cooling throughout + reverse cycle split system unit to living area providing year round comfort
- Manicured front and rear yards with mini hedge border to rear
- Fully fenced rear yard
- Double garage with automatic panel lift door + direct internal access to home
- Rear roller door with secure drive through access to rear yard, ideal for the trailer or small boat
Situated in a prime location, close to Golden Grove Village Shopping Centre, a variety of public and private schools and extensive bus routes.
For further information please contact Gordon Little on 0418 824 036, or 8269 7711 (office).
RLA 265613
