Peaceful and Practical Living in a Leafy Setting
Set on an elevated block with leafy views across Wentworth Reserve, this inviting home offers easy living in a serene setting. An ideal option for downsizers, investors or those seeking an affordable entry into the property market.
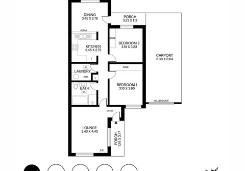
The light-filled front lounge features a reverse cycle split system air conditioner, while two well-proportioned bedrooms are finished with plush carpet and mirrored built-in robes. The open-plan kitchen and dining zone offers a practical and comfortable space for everyday living, with the well-equipped kitchen featuring a large double bowl sink, stand-alone electric stove and oven, breakfast bar and generous storage.
Step outside to a low maintenance outdoor area, accessed directly from the dining space and framed by a feature retaining wall. Stairs ascend to a well-kept mezzanine lawn, creating a versatile outdoor zone to enjoy.
Enjoy a convenient location close to local shops, public transport, parks and everyday amenities, with the open green spaces of Wentworth Reserve right at your doorstep.
Features that make this home special:
- Two generously sized bedrooms with plush carpet and mirrored built-in robes
- Light-filled front lounge with reverse cycle split system air conditioning
- Open-plan kitchen and dining
- Neat kitchen featuring a double bowl sink, stand-alone electric stove and oven, breakfast bar, space for a double fridge, and ample storage
- Spacious bathroom with a sky light, shower, bath, vanity and toilet
- Stylish separate laundry with sky light, plenty of bench space, storage and sink
- Single car carport with roller door
- Low maintenance, undercover outdoor area featuring a retaining wall and stairs leading to the well-kept mezzanine lawn
- Shed for additional storage
Ideally located close to a variety of quality local schools, shops and everyday services, including The Grove Shopping Centre, Golden Grove Primary School and Golden Grove High School. Several public transport links are nearby, while parks and green spaces such as Wentworth Reserve, Cobbler Creek Recreation Park and Goldenfields Reserve provide a leafy backdrop. All of this is just a short drive from the wider shopping, dining and entertainment options at Tea Tree Plaza.
All information contained herewith, including but not limited to the general property description, price and the address, is provided to Boffo Real Estate by third parties. We have obtained this information from sources we believe to be reliable; however, we have not verified and do not guarantee its accuracy. The information contained herewith should not be relied upon and you should make your own enquiries and seek advice in respect of this property or any property on this website.
Looking to purchase this property as an investment? Speak to our Property Management team to see how we can assist.
RLA 313174
Enquire about this property
