Your Chance to Shine in Golden Grove
Discover your family’s perfect sanctuary in this spacious home, set amidst beautifully manicured gardens and ideally positioned directly opposite Springhill Gardens. Just a short drive away, enjoy the scenic Goldenfields Reserve, featuring lush greenery and excellent recreational facilities - perfect for outdoor fun and relaxation.
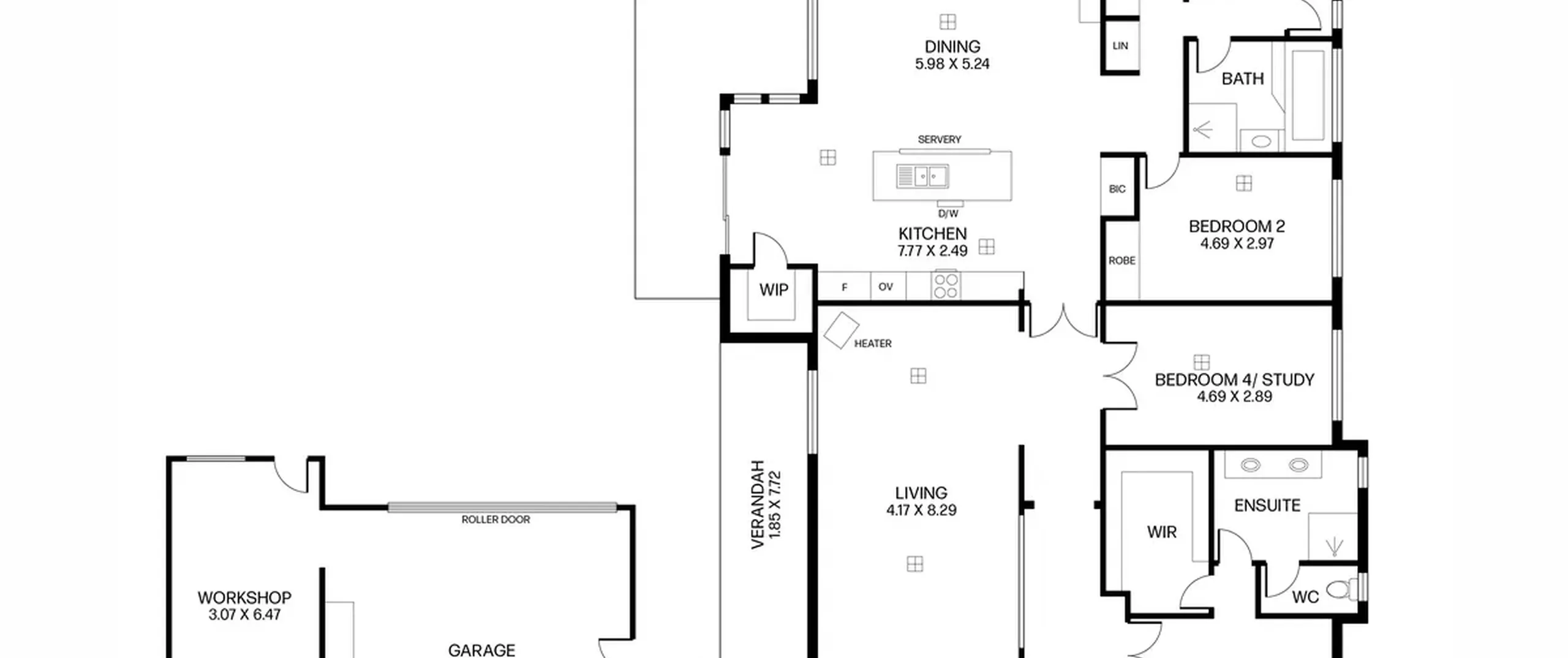
Set on a generous block, this home provides ample space for the whole family. Boasting four bedrooms, two bathrooms and multiple living areas with soaring cathedral ceilings, the layout effortlessly extends to a large undercover outdoor entertaining area. The backyard is beautifully presented with a spacious lawn - perfect for play, entertaining or creating your own lush garden retreat.
Features that make this home special:
- Expansive master bedroom featuring a bay window, walk-in robe and private ensuite, complete with dual vanities, shower and separate toilet
- Bedrooms two and three, all complete with built-in robe
- Versatile bedroom four or study
- Expansive living room with heater
- Open-plan family room with bar and seamless access to the outdoor entertaining area
- Tidy kitchen featuring a walk-in pantry, servery, dual sinks, dishwasher, electric oven and cook-top, ample bench and cupboard space
- Dining room adjacent kitchen
- Main bathroom featuring bath, shower, vanity and separate toilet
- Well-appointed laundry with built-in cabinetry and direct external access
- Storage throughout
- Wraparound verandah/outdoor entertaining area – ideal for year round entertaining
- Double garage with panel lift door and roller door rear access to back yard
- Additional single garage/workshop with a panel lift door
- Large rear lawn area – perfect for kids and pets to play
- Ducted air-conditioning throughout
Superbly positioned close to the shopping and entertainment offerings of The Grove Shopping Centre and Westfield Tea Tree Plaza. Enjoy the convenience of being within walking distance to public transport, a selection of local parks and excellent public and private schools, including Gleeson College, Pedare Christian College, Golden Grove High School and Golden Grove Primary School.
All information contained herewith, including but not limited to the general property description, price and the address, is provided to Boffo Real Estate by third parties. We have obtained this information from sources we believe to be reliable; however, we have not verified and do not guarantee its accuracy. The information contained herewith should not be relied upon and you should make your own enquiries and seek advice in respect of this property or any property on this website.
Looking to purchase this property as an investment? Speak to our Property Management team to see how we can assist.
RLA 313174
