Easy Living in the Heart of Convenience
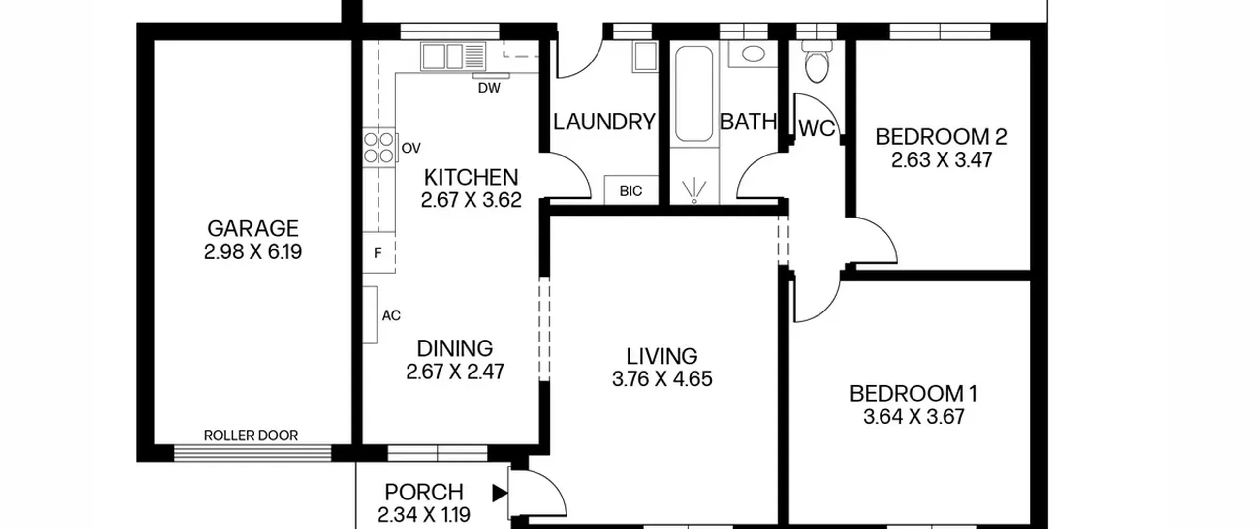
Nestled within a tidy, well-maintained Strata-titled complex of three units, this solid brick home (built 1983) offers two bedrooms and a light-filled open plan lounge area. Freshly painted throughout, it features an updated kitchen and a private rear yard, perfect for relaxing or entertaining.
Ideal for first-time homebuyers, this property offers a fantastic entry point into a friendly neighborhood, just minutes from North East Road and Gilles Plains Shopping Centre.
Offering privacy and security with roller shutters on the front windows, this home is ideal for those looking to downsize with ease of mind.
Features that make this home special:
- Two bedrooms conveniently located near the main bathroom
- Spacious, light-filled open-plan lounge with split-system air-conditioning
- Fully tiled lounge and bedroom areas for easy maintenance
- Updated kitchen featuring a gas cooktop, electric under-bench oven and generous storage
- Centrally positioned main bathroom with shower, bath, vanity and separate toilet for family convenience
- Functional laundry with storage and direct access to the rear yard
- Private rear yard, perfect for relaxing or entertaining
- Single, secure lock-up garage with roller door
Superbly positioned just a short drive from Westfield Tea Tree Plaza and Gilles Plains Shopping Centre, this home offers convenience at every turn. Within walking distance to public transport, local parks and excellent schools including St Paul’s College and Kildare College. All of this, and only 12km (approximately) to the Adelaide CBD, makes this the perfect place to call home!
All information contained herewith, including but not limited to the general property description, price and the address, is provided to Boffo Real Estate by third parties. We have obtained this information from sources we believe to be reliable; however, we have not verified and do not guarantee its accuracy. The information contained herewith should not be relied upon and you should make your own enquiries and seek advice in respect of this property or any property on this website.
The Vendor's Statement (Form 1), the Auction Contract and the Conditions of Sale will be available for perusal by members of the public - (A) at our office located at 78-80 North East Road, Walkerville for at least 3 consecutive business days immediately preceding the auction; and (B) at the place at which the auction is to be conducted for at least 30 minutes immediately before the auction commences.
Looking to purchase this property as an investment? Speak to our Property Management team to see how we can assist.
RLA 313174
