Glamour in Gilles Plains – over 530sqm* of Build Area with Sparkling Swimming Pool
The perfect family home does exist, and this is it!
This spectacular residence is an entertainer’s oasis, boasting a multitude of formal and informal living spaces and a sparkling in-ground swimming pool. Anyone who appreciates a flawless finish and contemporary style will adore this luxurious family abode – a home sure to be enjoyed for years to come by the next lucky owners.
The entranceway sets an impressive tone for what is to come with a show-stopping chandelier and ornate coffered ceilings. Follow the gleaming porcelain tiles past the elegant formal lounge and dining and adjacent living room to an inviting open-plan family and dining area. The lavish kitchen will ensure that even the most dedicated cook feels right at home. Take pleasure in its quality appliances, high-end finishes, granite benchtops and desirable kitchen island.
Host the entire family plus friends under the significant alfresco, complete with an outdoor kitchen and BBQ, ceiling fans and café blinds. The young and young-at-heart alike will love the outstanding swimming pool.
Truly an entertainer’s heaven, this grand residence ticks all the boxes. A quality build in a superb location within walking distance to Lion Peter Wesbroom Reserve and with a floor plan of over 530sqm*, this is a home of exceptional size and is sure to impress even the most fastidious of buyers.
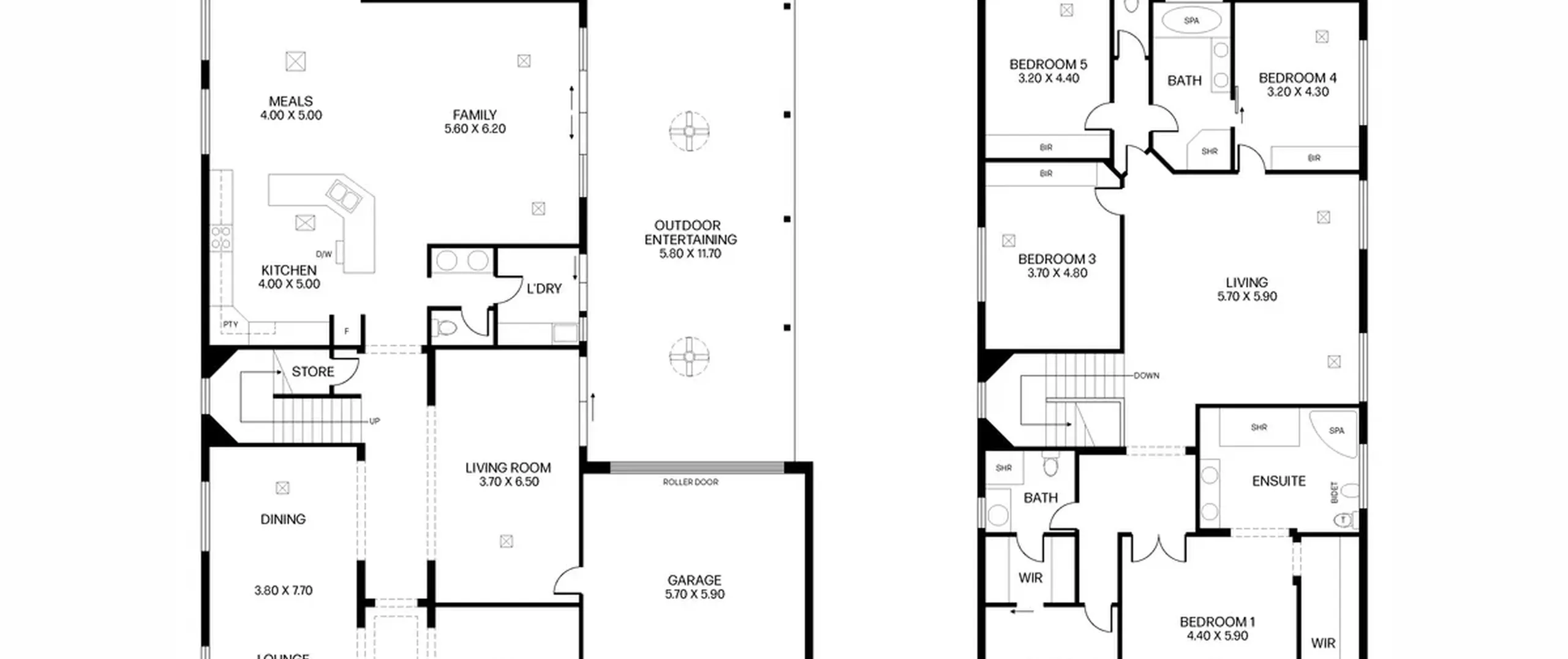
Ground level featuring:
- Sleek black kitchen with granite benchtops and splashback, breakfast bar, dishwasher, ample cupboard space, quality 900mm stainless steel appliances and large pantry
- Striking open plan meals and family area with views of the entertaining area and swimming pool
- Grand formal lounge and dining room
- Additional separate living room
- Valuable home office
- Stylish powder room with dual basins
- Exceptional outdoor entertaining area complete with ceiling fans, café blinds and a spectacular outdoor kitchen with a built-in BBQ
- Sparkling in-ground swimming pool with water feature
- Laundry with access to exterior
- Double garage with internal entry, automatic panel lift door and roller door to rear allowing drive through access
Upper level featuring:
- Spacious master bedroom with double doors, large walk-in robe and ensuite featuring floor to ceiling tiles, his and her basins, spa bath, impressive shower and balcony with exquisite views
- Bedroom 2 with walk-in robe and valuable direct access to second bathroom
- Bedroom 3, 4 and 5 of great size, complete with built-in robes and access to third bathroom which features spa bath, dual basins and quality finishes
- Additional separate toilet for added convenience
- Large upstairs living room – a perfect teenage retreat
Other features to further entice:
- Ducted reverse cycle air-conditioning
- High ceilings
- Beautiful porcelain tiles
- LED downlights throughout
Superbly located only minutes away from all the shopping and entertainment that Westfield Tea Tree Plaza and Gilles Plains Shopping Centre have to offer. Within walking distance to public transport options, a variety of local parks and excellent schools including St Paul’s College and Kildare College. All of this and only 11.7km* to the Adelaide CBD, this is the perfect place to call home!
*Approximately
For further information, please contact Fadi Oudih on 0455 999 007, Paul Leombruno on 0439 160 161 or 8269 7711 (office).
The Vendor's Statement (Form 1), the Auction Contract and the Conditions of Sale will be available for perusal by members of the public -
(A) at our office located at 78-80 North East Road, Walkerville for at least 3 consecutive business days immediately preceding the auction; and
(B) at the place at which the auction is to be conducted for at least 30 minutes immediately before the auction commences.
All information provided has been obtained from sources we believe to be accurate, however, we cannot provide any guarantee and we accept no liability for any errors or omissions (including but not limited to a property's land size, floor plans and size, building age and condition). Interested parties should make their own inquiries and obtain their own legal advice.
RLA 313174
