Outstanding Low Maintenance Torrens Titled Family Home!
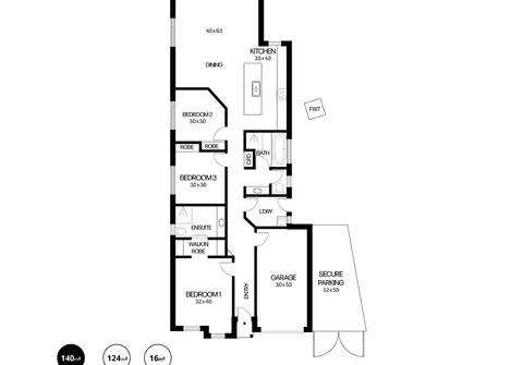
This fantastic 2013 built home is situated on 376sqm (approximate). Comprising of three good sized carpeted bedrooms including a large master bedroom with his/hers walk-in robes and ensuite. Bedrooms two and three both have built-in robes and the main bathroom is modern and centrally located.
The home has outstanding livability features added to further enhance its appeal to all buyers. One of these additional features includes a 4kW Solar PV system perfect for minimizing those power bills.
The rear living area is light filled and spacious and leads out to fantastic landscaped yard, the perfect place to entertain with family and friends.
Some other additional features include:
- Large kitchen with ample bench space, double sink, gas cooking and stainless steel Westinghouse appliances
- Large light filled lounge/dining area
- Extra linen storage
- Ducted evaporative cooling throughout
- 6.5kW reverse cycle air conditioner to lounge/dining
- Good size laundry with outside access
- Paved and landscaped low maintenance back and front yards
- Security roller shutters and screens on all main doors and windows
- Single garage with automatic roller door and direct internal access
- 2 further secure off street car parks
Ideally located close to all modern conveniences, with great connection to the community. It is not only appealing to purchasers that are buying their first home or looking to downsize, but with the potential to rent out for approximately $360 - $380 per week, it is a wonderful investment opportunity also.
Superbly located only minutes away from all the shopping and entertainment that Westfield Tea Tree Plaza and Gilles Plains Shopping Centre have to offer. Within walking distance to public transport options, a variety of local parks and excellent public and private schools including St Paul’s College, Wandana Primary School and Kildare College. All of this and only 11.7km (approximately) to the Adelaide CBD, this is the perfect place to call home!
For further information please contact Gabriel Titmarsh on 0497 191 000 or 8269 7711 (office).
RLA 200591
