The Opportunities are Endless!
Whether you’re looking for your first home, a renovation project or a low-maintenance investment, then 58 Mira Street is the property just for you. This easy-care abode is presented in its original condition, on an appealing corner block location with a practical layout that will tick all the boxes for astute house-hunters.
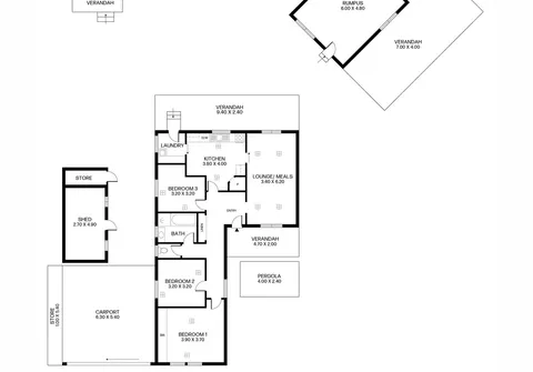
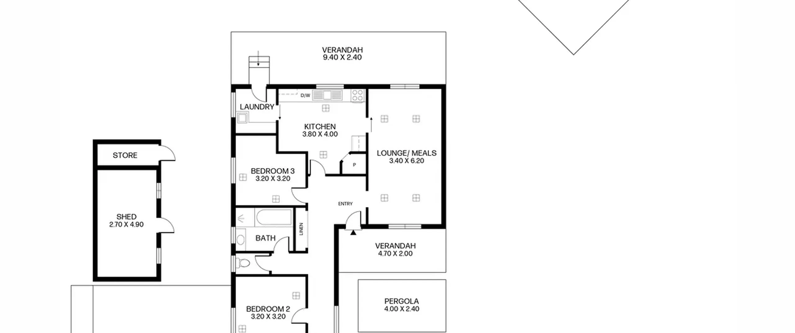
The floorplan comprises three bedrooms, one bathroom and a separate laundry. The home chef will take pleasure in the well-appointed kitchen with an adjoining meals/lounge room and direct access through to the backyard. A detached rumpus room compliments the spacious home and completes the functional layout.
Your new home is situated in a fantastic location and is located close to local shops, schools and public transport links. The home is nestled neatly behind a picket fence and surrounded by established gardens, with a carport for convenient off-street parking.
Whatever your vision for the future, this Gepps Cross property has something for everyone.
Features that make this home special:
- Large main bedroom with wall-length built-in robe
- Bedrooms 2 and 3 both of good-size
- Light-filled lounge and meals area with sliding door access to the kitchen
- Functional kitchen with standalone oven and gas cooktop, dishwasher and large pantry
- Main bathroom with separate bath and shower + separate toilet for added convenience
- Separate laundry with external access
- Detached rumpus room with split system air-conditioner and access to the verandah
- Undercover outdoor entertaining area with pitched roof pergola
- Garden shed with store area
- Large carport with storage space
- Fenced and established front garden with fruit trees
- Currently tenanted for $510.00 per week until January 2024
Located in close proximity to local shopping options, public transport and a variety of public and private schools. Cosmopolitan Prospect Road is only a short drive away, offering a variety of shopping, restaurants and cafes. All of this and only 10km (approximately) to the CBD with easy accessibility via Main North Road.
For further information please contact Paul Leombruno on 0439 160 161, Surinder Singh on 0488 555 119 or 8269 7711 (office).
All information contained herewith, including but not limited to the general property description, price and the address, is provided to Boffo Real Estate by third parties. We have obtained this information from sources we believe to be reliable; however, we have not verified and do not guarantee its accuracy. The information contained should not be relied upon and you should make your own enquiries and seek advice in respect of this property or any property on this website.
RLA 313174
