Fantastic Opportunity!
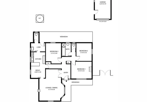
This lovingly maintained, colonial style home in a prime location within close proximity to all amenities is situated on a large 600sqm (approximate) block with an 18.5m (approximate) frontage.
Positioned directly over the road from the new and exciting Northridge Estate in Enfield, it is set to be surrounded by quality homes and provide easy access to the picturesque recreation spaces being created.
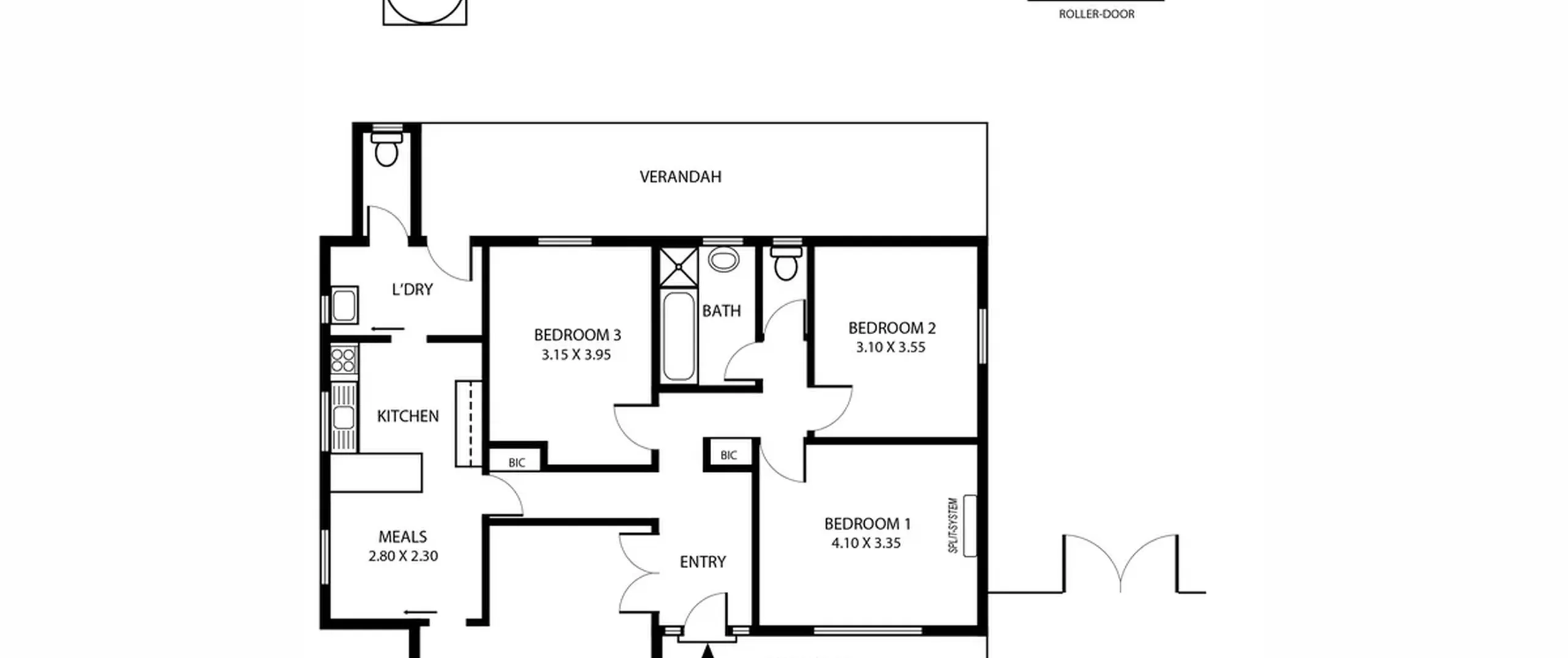
The home includes a sizable, solid brick garage / workshop that is in good condition and provides multiple options for buyers seeking extra space for extended families or to engage in hobbies.
Offering a great opportunity as a home to move into and start enjoying right away or also presenting as an excellent investment property with the ability to attract quality tenants and the area, enjoy good historical yields and capital growth.
Features that make this home special:
- Large master bedroom with split system air conditioner
- Good size bedroom 2 and 3
- Gracious, light filled lounge and formal dining room with wall air conditioner, beautiful bay window and stunning ceiling rose
- Functional kitchen with ample bench and cupboard space
- Casual meals area
- Neat and tidy bathroom with separate bath and shower + toilet
- Separate laundry incorporating valuable second toilet
- Instant gas hot water system
- Verandah, perfect for outdoor entertaining
- Manicured front and rear gardens
- Single garage with roller door
- Workshop/storage room with work bench
- 600sqm (approximate) block with 18.5m (approximate) frontage
Situated in quiet pocket of well maintained homes and in close proximity to local shopping options, public transport and a variety of public and private schools. All of this and only 9.1km (approximately) to the CBD!
For further information please contact Paul McIntosh on 0447 555 870, Paul Lukeman on 0427 273 590 or 8269 7711 (office).
RLA 200591
