Fantastic Starter or Ideal Investment!
This convenient and low-maintenance home is nestled amongst other quality homes and is sure to attract a wide variety of house-hunters. Investors, first-time buyers, downsizers and young families will be drawn to the ideal location and contemporary appeal of this property while investors will love the opportunity of rental return.
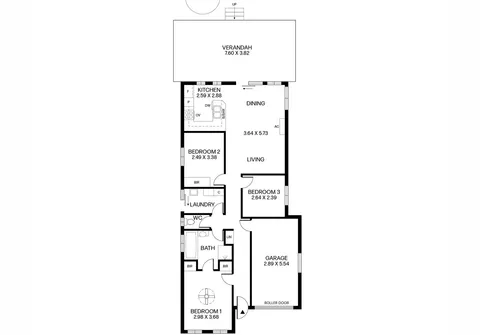
For those looking for a place to call their own, you’re sure to love the low-maintenance lifestyle on offer, boasting three bedrooms, a spacious open-plan living room and a two-way bathroom.
When it’s time to relax, an open-plan and air-conditioned living and dining space is the perfect setting for the busyness of everyday life. The neutral kitchen features gas cooking, ample storage and stainless steel appliances. Outside, a low-maintenance rear yard awaits with ample space for the kids and pets to enjoy, plus a verandah and garden shed.
Features that make this home special:
- Master bedroom with ceiling fan, built-in robes and ensuite access to the main bathroom
- Bedrooms 2 and 3 of good size; bedroom 2 with built-in robe
- Open-plan dining and living area with split system air conditioner and sliding door access to the verandah
- Well-appointed two-way bathroom with separate bath and shower
- Separate toilet for added convenience
- Practical laundry with external access and storage
- Expansive pitched roof verandah, over looking the well-manicured gardens
- Low-maintenance backyard with garden shed and rainwater tank
- Single garage with roller door and internal access
- Charming facade with low-maintenance front garden and long driveway
Located in Gawler South and away from the hustle and bustle of city life, yet only a short drive to the town centre. Close proximity to the area's best Private and Public schools. Multiple transport options including bus, train and direct driving route to the Adelaide CBD. Lots of recreation parks, walking trails and the natural environment all surrounding this quality home.
For further information please contact Gabriel Titmarsh on 0497 191 000 or 8269 7711 (office).
All information contained herewith, including but not limited to the general property description, price and the address, is provided to Boffo Real Estate by third parties. We have obtained this information from sources we believe to be reliable; however, we have not verified and do not guarantee its accuracy. The information contained should not be relied upon and you should make your own enquiries and seek advice in respect of this property or any property on this website.
RLA 313174
