Charming Single Fronted Cottage!
Perfectly positioned in a great city fringe location on approximately 390sqm of land with a North facing rear and showcasing its original character features including feature fireplaces, leadlight windows and timber floors, this delightful residence is not to be missed. This Community Titled home offers a 'move in with nothing to do' opportunity and will appeal to the young professional, downsizer or astute investor.
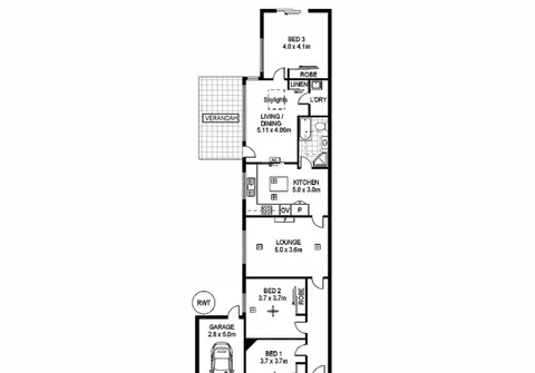
Features that make this home special:
- 3 good sized bedrooms, all with built-in robes
- Large lounge with fireplace
- Rejuvenated kitchen with gas cooktop, island bench, puratap and ample cupboard space
- Light filled family room with split system air conditioner
- Updated bathroom with separate bath and shower + heat lamps
- Separate laundry
- Feature fretwork and architraves, lead light windows and timber floors
- Ducted evaporative cooling and gas heating throughout
- Instantaneous gas hot water system
- Paved patio area, ideal for outdoor entertaining
- Variety of fruit trees
- Rainwater tank
- Garden shed
- 1.5kw solar panel system
- Single garage with roller door and direct external access
In close proximity to all of the shopping, eating and entertainment options that Goodwood Road has to offer and only a short walk to the Adelaide Showgrounds, Unley Swimming complex/reserve, Goodwood train station, Adelaide Parklands, and a variety of quality schools. All of this and just 2.3km (approximately) to the CBD!
For further information please contact Graeme Brown on 0455 111 791 or Lidija Kies on 0477 779 579 or 8269 7711 (office).
RLA 200591
The Vendor's Statement (Form 1), the Auction Contract and the Conditions of Sale will be available for perusal by members of the public -
(A) at our office located at 434 Montague Road, Modbury North for at least 3 consecutive business days immediately preceding the auction; and
(B) at the place at which the auction is to be conducted for at least 30 minutes immediately before the auction commences.
