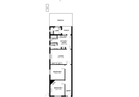
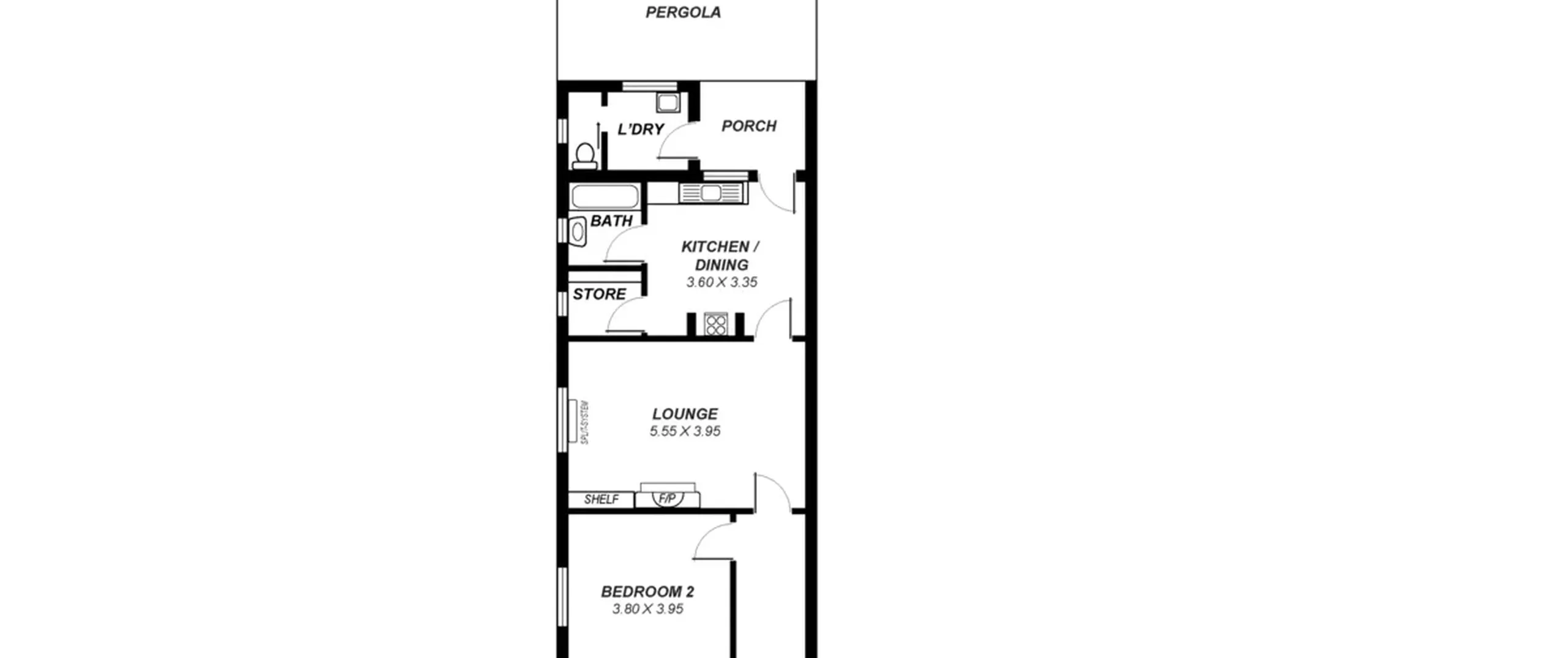
Charming Single Fronted Cottage
Positioned in a great city fringe location with valuable off street parking and showcasing its original character features including high ceilings, polished floorboards and feature fireplace, this delightful residence is not to be missed. The home is a blank canvas and offers the potential to renovate or extend further (STCC) providing the new owner endless opportunities to add significant value. This picture perfect home will appeal to both the young professional, downsizers or astute investor.
Features that make this home special:
- 2 good size bedrooms, bedroom 1 with split system air conditioner and heater
- Light filled lounge with fireplace, split system air conditioner and shelf
- Polished Baltic Pine floorboards
- Decorative high ceilings
- Combined kitchen and dining room with gas cooking and walk-in pantry or store room
- Main bathroom with combined bath/shower + separate toilet
- Separate laundry
- Paved pergola area, ideal for outdoor entertaining
- Rainwater tank
- Garden shed
- Established, fully fenced front and rear yards
- Side access gate with valuable off-street parking for 2 cars from Charles street.
In close proximity to all of the shopping, eating and entertainment options that Goodwood Road has to offer and only a short walk to the Adelaide Showgrounds, Unley Swimming complex/reserve, Goodwood train station, Adelaide Parklands, and a variety of quality schools. All of this and just 2.1km (approximately) to the CBD!
Opportunities like this wont last long!
For further information please contact Graeme Brown on 0455 111 791 or 8269 7711 (office).
RLA 200591
