Spacious, Sunlit, and Perfect for a Lock-Up-and-Leave Lifestyle!
Nestled in a quiet, single-storey group of just three, this beautifully renovated end-unit is your perfect sanctuary. Flooded with natural light thanks to its desirable northerly aspect, this home exudes warmth and charm, offering an inviting feel throughout.
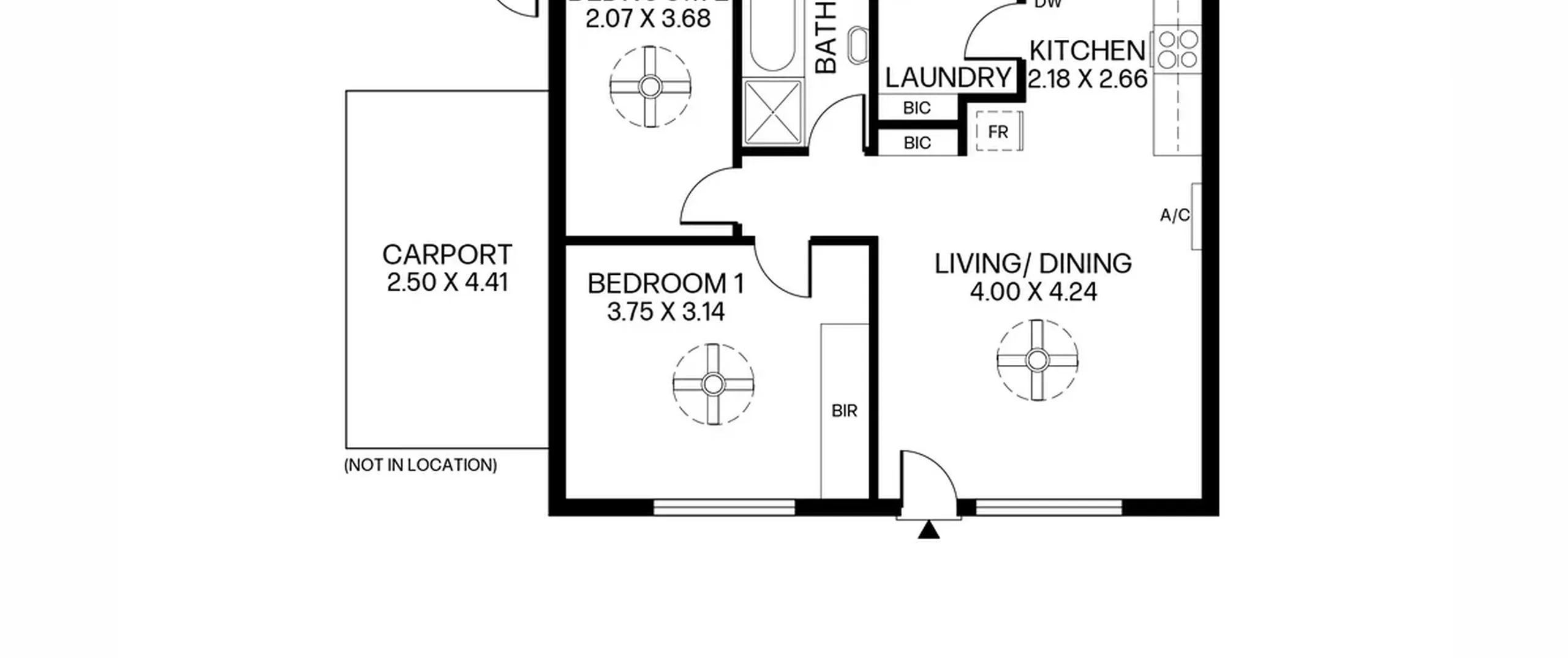
Step inside to discover an inviting open-plan living and dining area that flows seamlessly into a stunning updated kitchen, complete with a dishwasher. Both generously sized bedrooms feature plush carpets and ceiling fans, while the bathroom includes a separate shower and bath for added convenience. The home also boasts a separate laundry, undercover parking, and a private, low-maintenance rear courtyard for relaxing or entertaining.
With stylish floating floors, reverse cycle air-conditioning, and solid brick construction, this property is move-in ready. Located just 8 minutes (approx.) from the beach and close to excellent shopping, parks, cafes, and restaurants, it’s an unbeatable opportunity for those seeking comfort, convenience, and lifestyle in a small, private group of three!
Features that make this home special:
- Bedroom 1 with ceiling fan and built-in robe
- Bedroom 2 with ceiling fan
- Light-filled living and dining room with modern flooring, ceiling fan and split-system air-conditioning
- Timeless white kitchen with dishwasher, gas cook top and ample cupboard space
- Bathroom with bath tub, shower and toilet
- Separate laundry
- Courtyard
- Single carport
Perfectly positioned in one of Adelaide’s most sought-after, high-growth suburbs, this location offers unparalleled convenience and lifestyle appeal. Just minutes from both Westside and Findon Shopping Centres, it places all your shopping and dining needs right at your doorstep. Enjoy the best of both worlds with Grange Beach only a 10-minute drive away and the Adelaide CBD just 15 minutes (approximately) by car. Families will appreciate the zoning to Findon High School, (approx.) stroll, while Seaton Primary School is also within easy distance, ensuring top-notch educational options close to home.
All information provided has been obtained from sources we believe to be accurate, however, we cannot provide any guarantee and we accept no liability for any errors or omissions (including but not limited to a property's land size, floor plans and size, building age and condition). Interested parties should make their own inquiries and obtain their own legal advice.
RLA 313174
