The Perfect Investment!
Whether you are starting out, slowing down or looking to invest, this low maintenance home should capture your attention.
Tucked away in a tightly held group, this well-maintained and secure 2-bedroom homette is conveniently located within walking distance to numerous amenities and offers a true lock up and leave lifestyle.
Perfect for investors looking to add to their portfolio, downsizers looking for a low maintenance lifestyle, or the first home buyer looking to enter the market.
Features that make this home special:
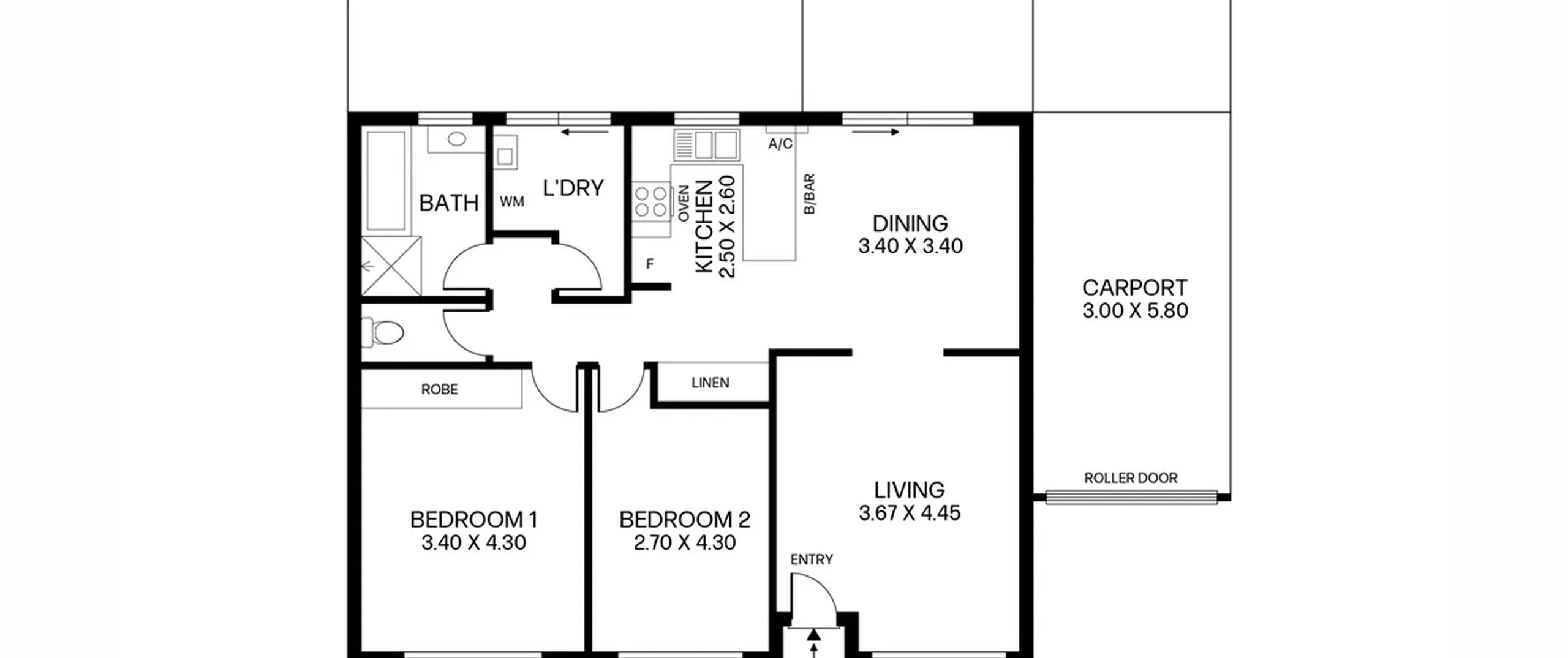
- Well-appointed bedroom one, complete with large built-in robe
- Bedroom two of good proportions
- Spacious living room adjoining the open dining and kitchen area
- Neutral kitchen featuring ample bench space including a breakfast bar, air conditioner and abundance of cupboard storage
- Neat and tidy main bathroom with bath and shower
- Convenient separate toilet
- Practical laundry with external access
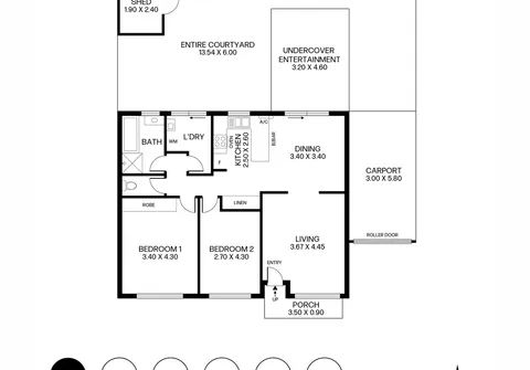
- Paved undercover entertainment area with direct access to the dining room
- Low maintenance backyard with tool shed
- Single carport with roller door
- Currently tenanted until December 2022.
Situated within close proximity to several sporting clubs and facilities, a variety of schools, public transport options and local shops. All of this and only 9km (approximately) to the CBD!
For further information contact Gabriel Titmarsh on 0497 191 000, Leisa Da Silva on 0488 222 882 or 8269 7711 (office).
All information provided has been obtained from sources we believe to be accurate, however, we cannot provide any guarantee and we accept no liability for any errors or omissions (including but not limited to a property's land size, floor plans and size, building age and condition). Interested parties should make their own inquiries and obtain their own legal advice.
RLA 313174
