A Prime Property with Real Potential!
Perfectly positioned in the popular suburb of Evanston Park, this unassuming property is bursting with potential. If you’re looking for your first home, a savvy investment or a renovation project, you will be impressed with the light filled and spacious floor plan this property has to offer.
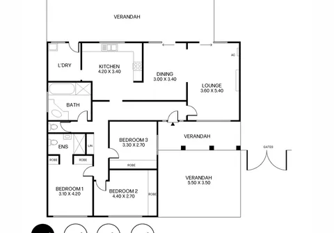
Complete with three bedrooms and two bathrooms, plus a large verandah where you can relax as the kids enjoy the expansive backyard. All of this and set on a centrally-located 701sqm (approximate) block with a 19.81m (approximate) frontage, which is sure to appeal to anyone with development dreams (Subject to Council Consent).
Features that make this home special:
- Large bedroom 1 complete with built-in robes and ensuite
- Bedroom 2 and 3 of good size, both with built-in robes
- Light filled lounge with air conditioner
- Spacious dining
- Practical kitchen with ample cupboard and bench space
- Main bathroom with bath, separate shower and separate toilet
- Laundry with external access
- Extensive verandah entertaining area
- Fully fenced yard with garden shed and gated drive through access
- Off-street parking for multiple vehicles
This home is located just a short walk from the Gawler Green Shopping Centre and only moments from quality public and private schools including Trinity College Gawler and Gawler & District College B – 12. A variety of pubs, cafes and specialty stores are within a short drive in the neighbouring town of Gawler and many parks and reserves are within close proximity. Public transport is within easy reach and access to main roads will have you in the CBD within 45 (approximate) minutes. All this and just a 25 minute (approximate) drive to all the wineries and restaurants The Barossa Valley has to offer!
For further information please contact Kevin Nguyen on 0427 273 590, James Rawkins on 0408 081 826 or 8269 7711 (office).
RLA 200591
The Vendor's Statement (Form 1), the Auction Contract and the Conditions of Sale will be available for perusal by members of the public -
(A) at our office located at 87 North East Road, Collinswood for at least 3 consecutive business days immediately preceding the auction; and
(B) at the place at which the auction is to be conducted for at least 30 minutes immediately before the auction commences.
