Location Perfect
This fantastic low maintenance home provides a great opportunity for those seeking a secure and private property without compromising on comfort and location. Set in a small group of 5 on a 160sqm (approximate) allotment, this two bedroom unit has been a much loved home for 10 years. With its great city fringe location, this is a home that will truly appeal to those already living in the area and looking to downsize. Equally it represents a great opportunity for first home buyers and astute investors.
Features that make this home special:
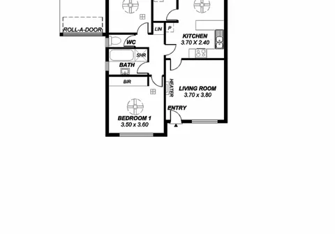
- Generous master bedroom with ceiling fan and built-in robe
- Good sized bedroom 2 with ceiling fan
- Light filled living room with gas heater
- Functional kitchen with gas cooktop and ample bench and cupboard space
- Meal area adjacent kitchen with ceiling fan
- Neat and tidy bathroom with separate bath and shower + separate toilet
- Separate spacious laundry
- Ducted evaporative cooling throughout
- Well maintained private courtyard
- Secure garage with roller door and additional off street parking for an extra car
Ideally located with a variety of facilities nearby, you will be spoilt for choice! Only minutes away from Norwood Parade and Marden Shopping Centre. Excellent public and private schools are close by and public transport options including bus stops to the city or Paradise Interchange are within a stone's throw. All this and only 4kms (approximately) to the Adelaide CBD.
Be quick for this one!
For further information please contact Graeme Brown on 0455 111 791 or 8269 7711 (office).
RLA 200591
