Under Contract
Indulge in a low-maintenance lifestyle of comfort and leisure with this modern and stylish, TRIIIA built Torrens Titled home in 2020. Conveniently positioned on a quiet street in the heart of Enfield amongst other similar newer homes and within easy reach of all amenities. Just moments from Prospect Road, offering convenient access to shopping and dining choices.
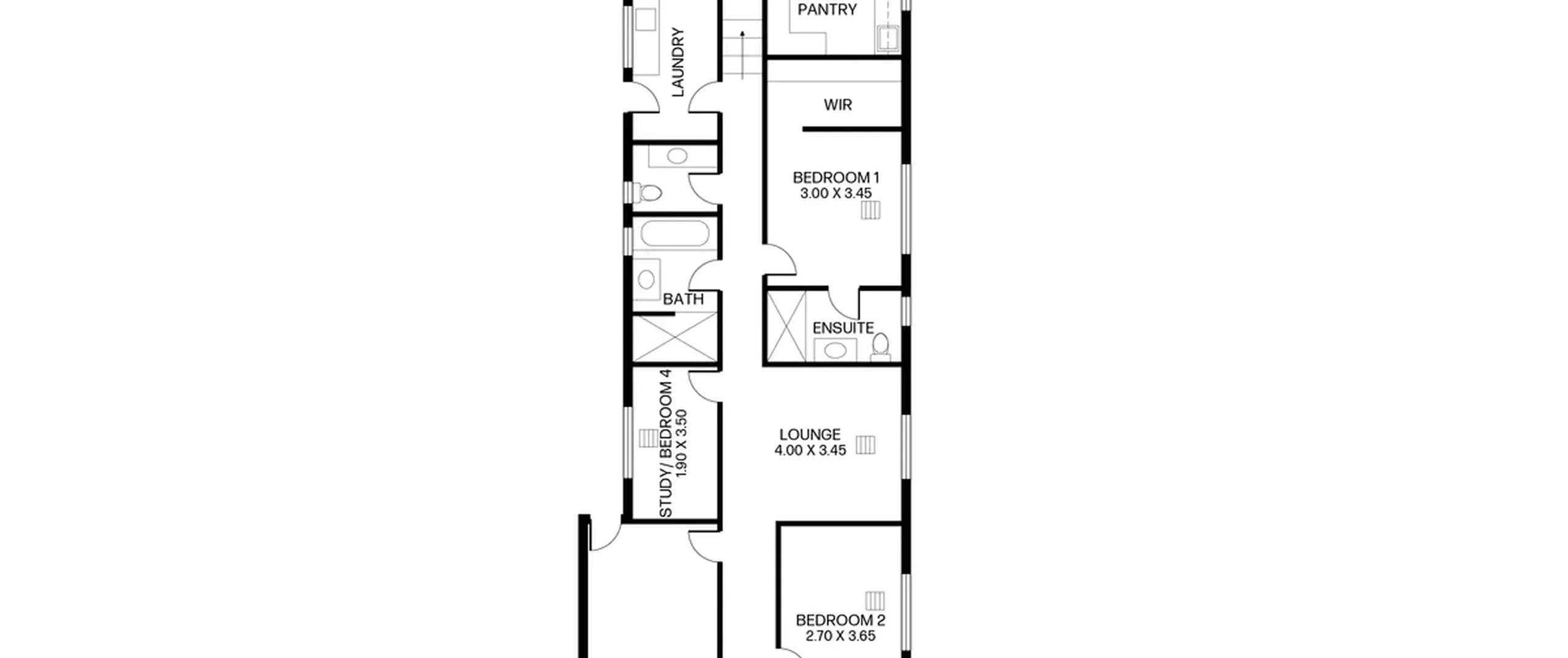
The spacious layout provides a master bedroom with a stunning ensuite and walk-in robe, together with two additional bedrooms providing built in robes. You’ll enjoy hosting friends and family in the simply stunning open-plan kitchen, living, and dining area, which flows effortlessly into the tiled alfresco. This space is accentuated by impressive 3.3m high ceilings, while the formal lounge offers a peaceful retreat for quieter moments.
With a great street presence and a modern, chic style throughout, there is nothing to do but simply move in, relax and enjoy what this fabulous property has to offer!
Features that make this home special:
- Master bedroom with spacious walk-in robe and modern ensuite featuring matte black fixtures
- Bedrooms 2 and 3 featuring built-in robes
- Study/fourth bedroom
- Light filled open plan family, dining and kitchen area
- Additional lounge room
- Modern Kitchen boasting feature glass splashback, breakfast bar, dishwasher and walk-in pantry with ample bench and cupboard space
- Chic main bathroom with separate bath and shower featuring matte black fixtures and waterfall showerhead
- Separate powder room for convenience
- Spacious laundry with rear yard access
- Ducted reverse cycle air-conditioning
- Tiled alfresco with gas connection
- Beautifully manicured rear yard with 2.1m fencing for quiet enjoyment, spacious lawn area for the kids and pets to enjoy
- Single garage with added length for storage, automatic panel lift door, internal entry and access to the rear yard
- 6.6KW solar electrical system
- Instant gas hot water system
- 2.7m ceiling throughout
- Three internet points
- 373sqm block (approximate)
Superbly located 9.9kms (approximately) from the Adelaide CBD and within a short drive to Sefton Plaza and Northpark Shopping Centre, a variety of local parks and public transport options. Additionally in close proximity to a variety of excellent public and private schools, including St.Gabriel's within walking distance, St Martin’s Primary, Prospect North Primary, Enfield Primary, Hampstead Primary, OLSH College and Roma Mitchell Secondary College.
All information contained herewith, including but not limited to the general property description, price and the address, is provided to Boffo Real Estate by third parties. We have obtained this information from sources we believe to be reliable; however, we have not verified and do not guarantee its accuracy. The information contained should not be relied upon and you should make your own enquiries and seek advice in respect of this property or any property on this website.
Looking to purchase this property as an investment? Speak to our Property Management team to see how we can assist.
RLA 313174
