Stylish Townhouse Living Across from Reserve!
Indulge in a low-maintenance lifestyle of comfort and leisure with this modern and stylish, Torrens title abode conveniently positioned across from a beautiful reserve featuring a BBQ area for the family to utilise and let the kids run free.
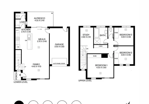
As you enter, you'll find yourself in an inviting open-plan area that seamlessly combines the kitchen, meals, living and alfresco. The kitchen boasts stainless-steel appliances with an island bench, ensuring effortless meal preparation for your family.
Upstairs, three spacious bedrooms are complete with built-in robes and are serviced by a gorgeous well-appointed bathroom. Additionally, there is a convenient study area so you can conveniently work from home.
With a great street presence and a modern, chic style throughout, there is nothing to do but simply move in, relax and enjoy what this fabulous property has to offer!
Features that make this home special:
Lower level comprising of:
- Gorgeous, light and bright open plan living, dining and kitchen area
- Stylish kitchen with gas cooktop, dishwasher, island bench and breakfast bar
- Toilet for your convenience
- Separate laundry
- Ducted reversed-cycle heating and cooling
- Alfresco
- Low maintenance, fully irrigated front and rear garden
- Single garage with automatic panel door, direct internal and external entry
Upper level comprising of:
- Three good sized bedrooms with built-in robes
- Modern main bathroom with separate bath and shower
- Study
- Linen cupboard
- Ducted reversed-cycle heating and cooling
Superbly located 8kms (approximately) from the Adelaide CBD and only minutes away from all the shopping, restaurants and cafes that Cosmopolitan Prospect Road has to offer. Within a short drive to Sefton Plaza and Northpark Shopping Centre, a variety of local parks and public transport options. Additionally in close proximity to a variety of excellent public and private schools, including St.Gabriel's within walking distance, St Martin’s Primary, Prospect North Primary, Enfield Primary, Hampstead Primary, OLSH College and Roma Mitchell Secondary College.
All information contained herewith, including but not limited to the general property description, price and the address, is provided to Boffo Real Estate by third parties. We have obtained this information from sources we believe to be reliable; however, we have not verified and do not guarantee its accuracy. The information contained should not be relied upon and you should make your own enquiries and seek advice in respect of this property or any property on this website.
The Vendor's Statement (Form 1), the Auction Contract and the Conditions of Sale will be available for perusal by members of the public - (A) at our office located at 78-80 North East Road, Walkerville for at least 3 consecutive business days immediately preceding the auction; and (B) at the place at which the auction is to be conducted for at least 30 minutes immediately before the auction commences.
RLA 313174
