Stylish, Contemporary Living!
This stylish Torrens Titled courtyard home is well positioned at the City end of this in-demand suburb. Providing modern contemporary comfort there is nothing to do but simply move in and enjoy!
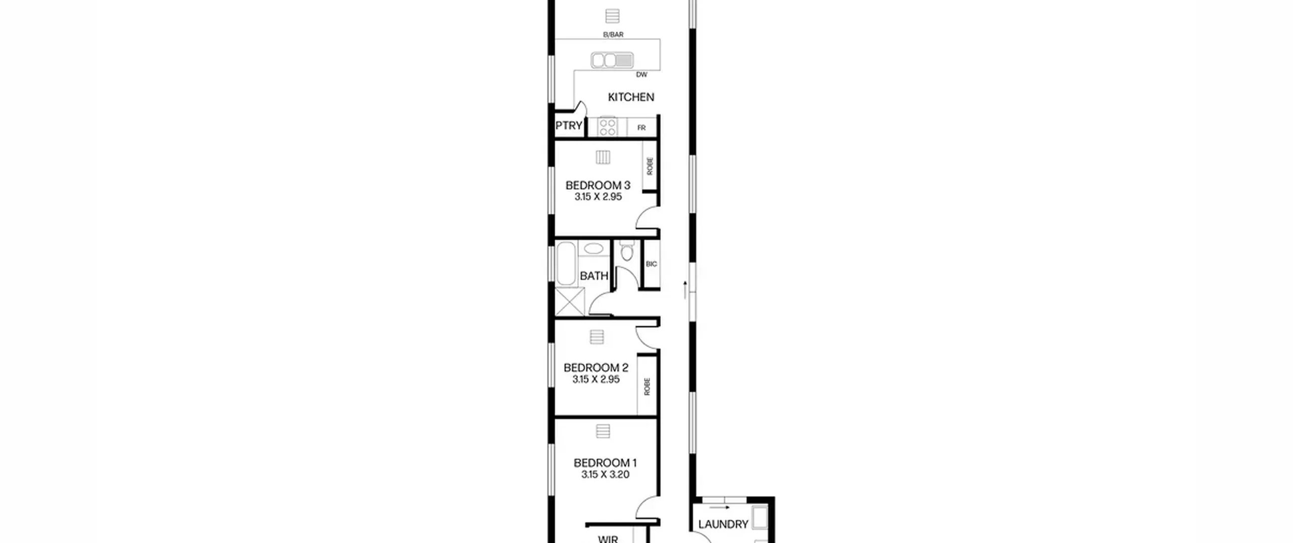
Built in 2017 and situated on a good sized 320sqm (approximate) allotment, it features a generous floorplan with two living areas, well-appointed kitchen and spacious outdoor entertaining area.
Ideally suiting families and first home buyers, investors seeking to add to their current portfolio and for downsizers already living in the area looking for a low maintenance opportunity.
Features that make this home special:
- Master bedroom with ensuite and walk-in robe
- Good sized bedrooms two and three, both with built-in robes
- Lounge room
- Light filled open plan living/dining and kitchen area that flows to the verandah, making the perfect space to entertain
- Modern, white kitchen with walk-in pantry, gas cooktop, dishwasher and breakfast bar
- Sparkling main bathroom with separate bath and shower + separate toilet
- Laundry with direct rear yard access
- 2.7m ceilings throughout
- 5.5kw solar electrical system (21 panels)
- Ducted air conditioning
- Decked outdoor entertaining area
- Beautifully landscaped front and rear yard
- Irrigation system
- Instant gas hot water system
- Rainwater tank
- Garden shed for storage
- Single garage with automatic roller door and internal access
Superbly located 8kms (approximately) from the Adelaide CBD and only minutes away from all the shopping, restaurants and cafes that Cosmopolitan Prospect Road has to offer. Within a short drive to Sefton Plaza and Northpark Shopping Centre, a variety of local parks and public transport options. Additionally in close proximity to a variety of excellent public and private schools, including St Martin’s Primary, Prospect North Primary, Enfield Primary, Hampstead Primary, OLSH College and Roma Mitchell Secondary College.
All information contained herewith, including but not limited to the general property description, price and the address, is provided to Boffo Real Estate by third parties. We have obtained this information from sources we believe to be reliable; however, we have not verified and do not guarantee its accuracy. The information contained should not be relied upon and you should make your own enquiries and seek advice in respect of this property or any property on this website.
The Vendor's Statement (Form 1), the Auction Contract and the Conditions of Sale will be available for perusal by members of the public - (A) at our office located at 78-80 North East Road, Walkerville for at least 3 consecutive business days immediately preceding the auction; and (B) at the place at which the auction is to be conducted for at least 30 minutes immediately before the auction commences.
RLA 313174
