Explore the Potential
Prime opportunity to secure such a fantastic property with endless potential! Set on a generous 633sqm (approximate) allotment with an 18m (approximate) frontage, the new owner has a multitude of options: renovate and add value, restore and rent out, redevelop and renew (all subject to council consent)!
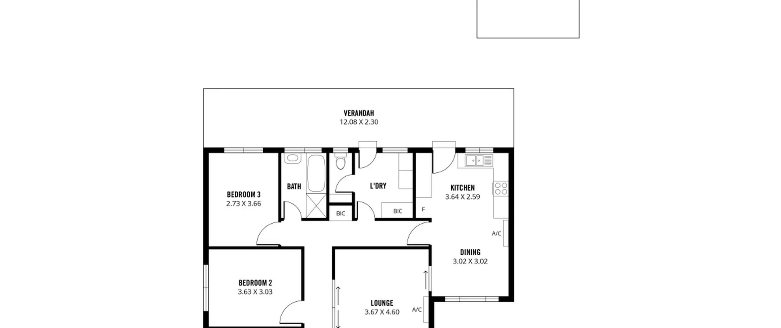
Features that make this home special:
- Large bedroom 1 with ceiling fan
- Good sized bedroom 2 and 3
- Light filled formal lounge with split system air conditioner
- Dining adjacent to kitchen
- Practical kitchen with ample cupboard and bench space
- Original bathroom with bath and separate shower
- Separate toilet
- Functional laundry with built-in cupboard
- Spacious verandah
- Fully fenced yard with large garage, aviary and under cover storage area
- Secure off street parking
Located only 8kms (approximately) from the Adelaide CBD and only minutes away from Enfield Plaza Shopping Centre, public transport and a variety of schools. Cosmopolitan Prospect Road is also only a short drive away, offering a variety of shopping, restaurants and cafes.
For further information please contact Gabriel Titmarsh on 0497 191 000 or 8269 7711 (office).
RLA 200591
