Fantastic Opportunity!
Prime opportunity to secure such a fantastic property with endless potential! Set on a generous 681sqm (approximate) corner allotment the new owner has a multitude of options: renovate and add value, restore and rent out, redevelop and renew (all subject to council consent)!
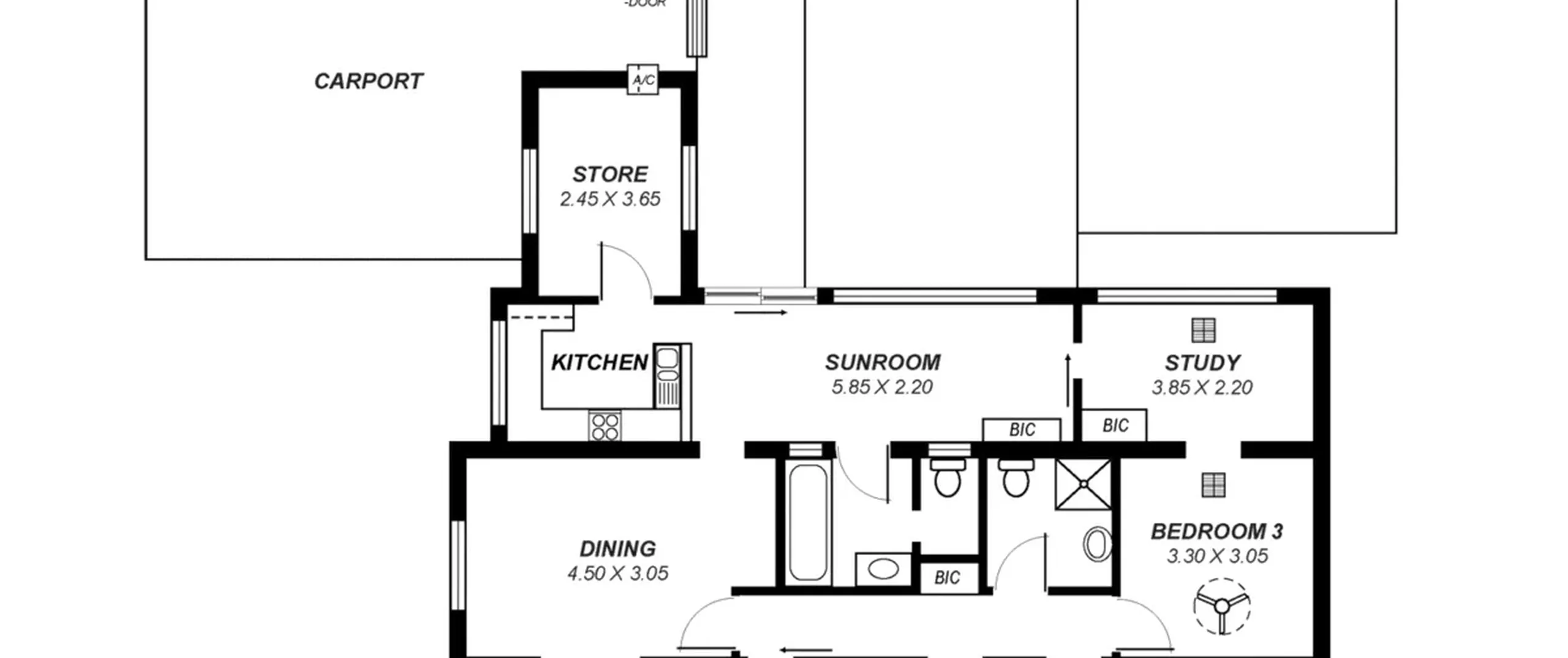
Features that make this home special:
- Master bedroom with built-in robe and ceiling fan
- Spacious bedrooms 2 and 3, bedroom 3 with ceiling fan and access to study
- Light filled lounge and dining room
- Functional kitchen with gas cooktop
- Sunroom with built-in cupboards
- Store room with air conditioner
- 2 neat and tidy bathrooms
- Reverse cycle ducted air conditioning
- Expansive verandah
- Fully fenced and secure front and rear yard
- Single carport behind roller door
- Large garage/workshop
Located only 7.9kms (approximately) from the Adelaide CBD and only minutes away from Enfield Plaza Shopping Centre, public transport, parks, sporting precincts and a variety of schools.
Currently rented at $330 per week until 28/01/2018
Do not miss out on this opportunity!
For further information please contact Darren Cowey on 0439 160 161 or 8269 7711 (office).
RLA 200591
