Fantastic Family Home - Adjacent Broadview
Ideally located bordering the highly sought after suburb of Broadview on a low maintenance allotment, this home will truly impress both the young professional with its close to city location and investors alike. Boasting quality fixtures and fittings this home provides an outstanding lifestyle opportunity for its new owner.
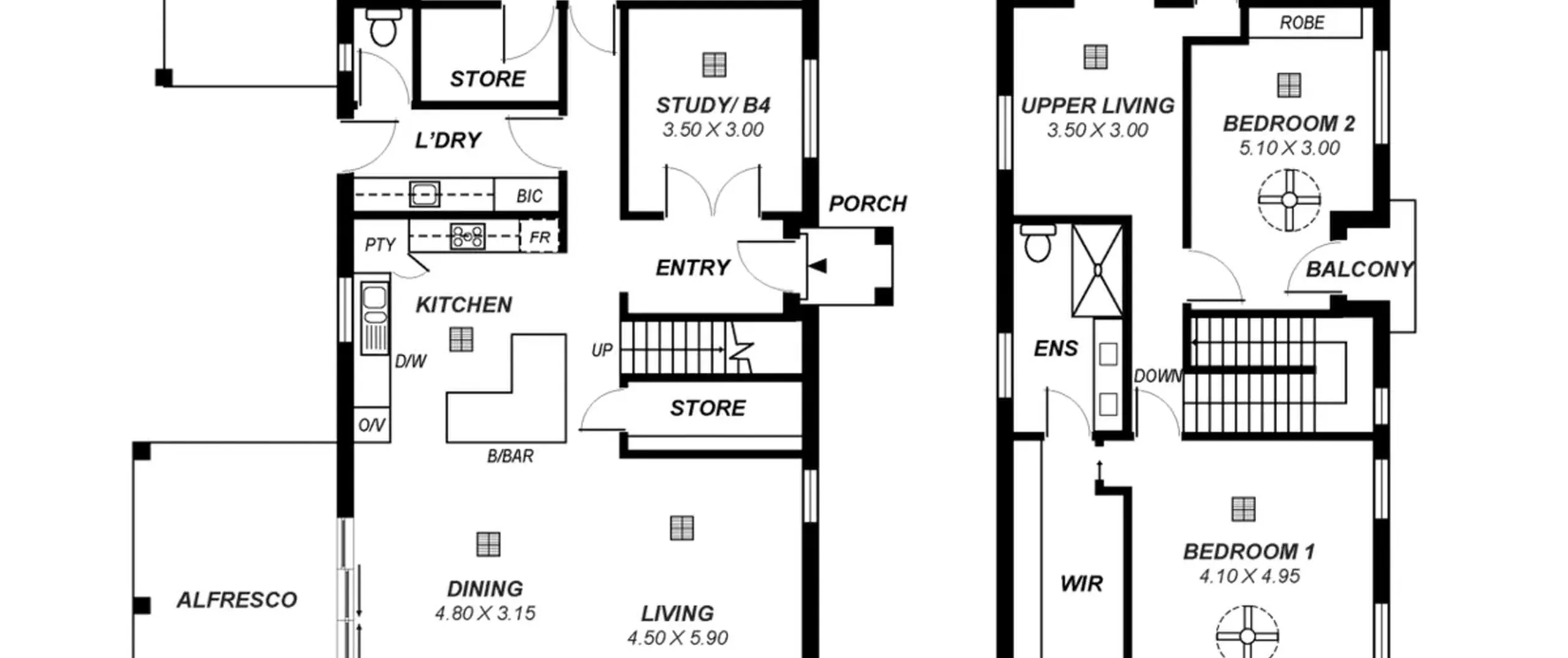
Features that make this home special:
Lower Level-
- Light filled open plan living area with hard wired surround sound
- Stylish kitchen with ample cupboard space, Caesar stone benchtops, puratap and Smeg stainless steel appliances including gas cooktop, dishwasher, built-in microwave, and oven/grill
- Study or optional bedroom 4
- Ducted reverse cycle air conditioning throughout
- Ducted Bremair gas heating
- Separate laundry with ample storage space, including separate toilet for your convenience
- Built in cupboard for ample storage
- 2.7m high ceilings throughout
- Rain water tank
- 3 zone security alarm
- Undercover entertaining area with exposed aggregate concrete floors, café blinds and provisions for outdoor kitchen
- Double garage with automatic panel lift door, direct internal access and rear yard access
- Secure yard with electric gate and digital intercom
Upper Level-
- Master bedroom with ceiling fan, large walk in robe and ensuite with double basin
- Spacious bedroom 2 with private balcony, built-in robes and ceiling fan
- Bedroom 3 with built in robes and ceiling fan
- Additional living area
- Sparkling main bathroom with separate bath and shower + separate toilet
Just 7kms (approximately) from the City and within close proximity to some of Adelaide's best public and private schools. Only minutes’ drive to Sefton Park and Northpark Shopping Centres. A short trip to North Adelaide and Prospect shops, cafes and the fabulous Adelaide Oval entertainment precinct. A variety of public transport options closeby.
For more information please call James Rawkins on 0408 081 826 or
Lidija Kies on 0477 779 579
**Please Note: The spa and sauna are excluded from the sale of the property**
RLA 265613
The Vendor's Statement (Form 1), the Auction Contract and the Conditions of Sale will be available for perusal by members of the public -
(A) at our office located at 434 Montague Road, Modbury North for at least 3 consecutive business days immediately preceding the auction; and
(B) at the place at which the auction is to be conducted for at least 30 minutes immediately before the auction commences.
