A Spacious and Easy-care Home with a Large Backyard!
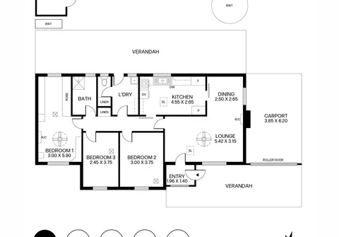
Move in and enjoy or bolster your investment portfolio and benefit from impressive returns, this is the large family home you’ve been searching for. The functional floorplan boasts three bedrooms and one bathroom while the expansive lot provides ample off-street parking and a huge backyard ready for the children and pets to enjoy.
Having been freshly painted throughout, the light filled lounge and dining area features air-conditioning, a ceiling fan and a skylight for year-round comfort. The spacious kitchen features plenty of bench and cupboard space as well as a double sink and dishwasher.
All three bedrooms are large including the expansive air-conditioned master with a built-in robe and a ceiling fan. An updated central bathroom, with a separate toilet, services the home with a separate internal laundry for added convenience.
The paved rear verandah provides room to entertain guests outdoors and you’re also sure to love the 2x4m shed for valuable added storage.
Features that make this home special:
- Master bedroom features air conditioner, ceiling fan and ample storage
- Good sized second and third bedrooms
- Spacious lounge and dining area with split-system air-conditioning
- Functional kitchen with double sink, dishwasher and ample storage space
- Recently updated bathroom with separate toilet
- Renovated laundry with external access
- Secure single carport with drive through access to rear yard
- Paved verandah overlooking large, low maintenance yard
- Ducted evaporative air conditioning
- Freshly painted throughout
- Roller shutters to all front rooms providing security and comfort
- Valuable garden shed
- New security fence to front of home
- Concrete driveway has been widened into a double width driveway
- Fresh grass to be laid to front and new carpet laid in house
Ideally located within a short drive to all the shopping and entertainment that Elizabeth Shopping Centre has to offer. Minutes from the Lyell McEwin Hospital, public transport options and a variety of schools as well as reserves along the Little Para River.
For further information please contact James Rawkins on 0408 081 826 or 8269 7711 (office).
All information provided has been obtained from sources we believe to be accurate, however, we cannot provide any guarantee and we accept no liability for any errors or omissions (including but not limited to a property's land size, floor plans and size, building age and condition). Interested parties should make their own inquiries and obtain their own legal advice.
RLA 200591
