Endless Potential
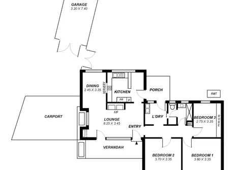
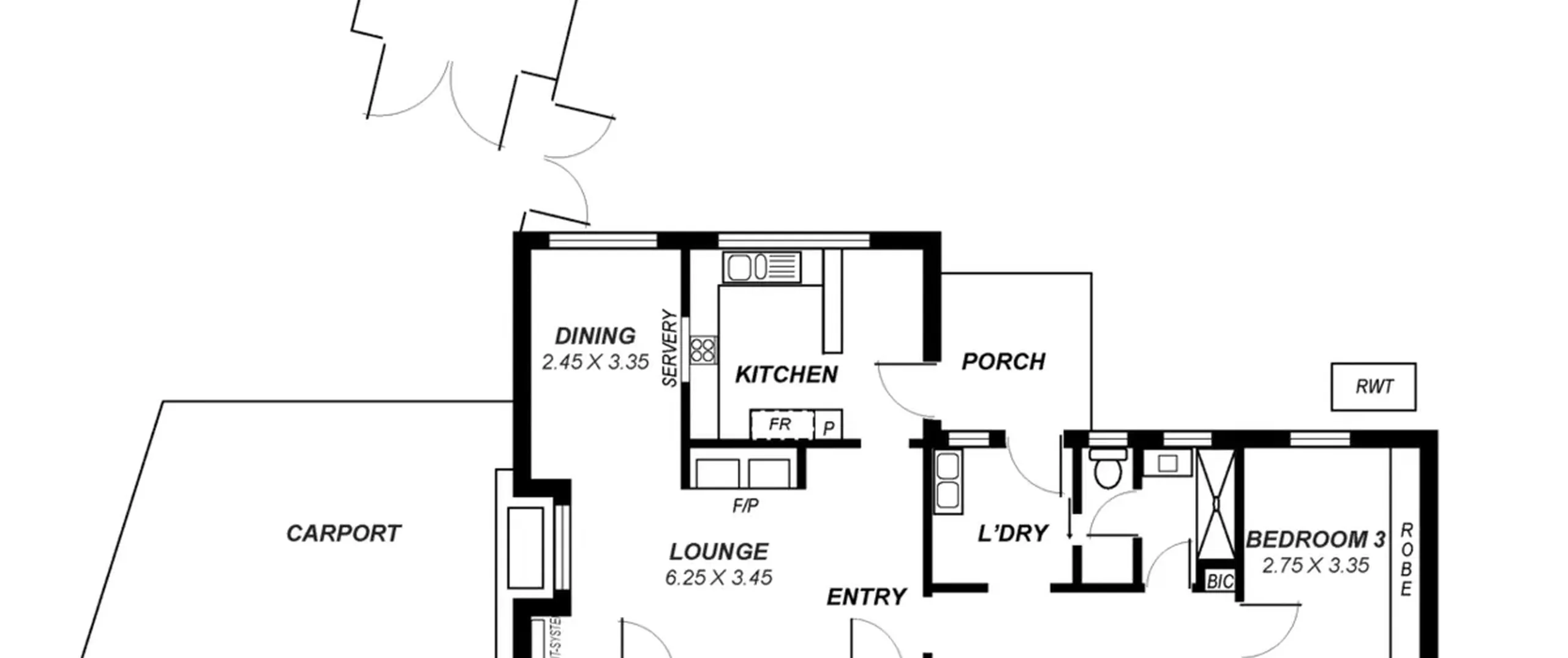
On offer is a fantastic opportunity to secure this huge corner allotment of 1,007sqm (approximately) in the newly rejuvenated suburb of Elizabeth South. Boasting a huge 35m (approximate) frontage and 46m (approximate) depth this home offers the lucky buyer a list of endless opportunities including: the potential to add your own stamp and move right in, rent out now and redevelop later or to use the site to build your dream home (subject to council consent).
Features that make this home special:
- 3 spacious bedrooms with built-in robe to bedroom 3
- Light filled lounge and dining area with split system air conditioner
- Functional kitchen with ample bench space and cupboard space
- Bathroom with shower + separate toilet
- Separate laundry
- Timber floors throughout
- Fully fenced front and rear yard
- Rainwater tank
- Large single garage
- Single carport
Do not miss out on this opportunity!!
Ideally located within a short drive to all the shopping and entertainment that Elizabeth Shopping Centre has to offer. Public transport options, a variety of schools, parks and the new Elizabeth Park Tennis Precinct are all nearby.
For further information please contact Mark Fricker on 0413 000 845 or 8269 7711 (office).
RLA 265613
