Picture-perfect Living with a Self-contained Granny Flat!
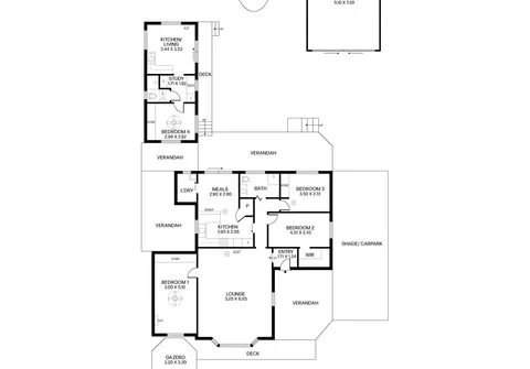
Welcome to your new home, a spacious haven offering the comfort and flexibility the modern family needs. The expansive layout offers four bedrooms and two bathrooms spread throughout the main home and a self-contained flat ready for extended family or guests.
There is a central lounge, a kitchen and meals area, plus multiple outdoor living spaces. In the studio, a second kitchen and living area awaits along with a study nook, air-conditioning and a deck with views over the pool.
When it’s time to entertain, the large covered deck is a perfect place to dine alfresco as the kid’s splash in the pool. A gazebo is set in the front yard, ready for you to start your day with a coffee in hand as you overlook the gardens. The 850sqm (approximate) block promises plentiful space for the kids to play and there is ample parking space. All of this is located within walking distance of public transport, the Elizabeth Shopping Centre and Fremont Park.
Features that make this home special:
- Master bedroom with built-in robe, ceiling fan and split system air-conditioning
- Bedrooms 2 and 3 of good size, bedroom 2 with walk-in robe and bedroom 3 with built-in robe
- Oversized lounge room with feature bay window, bulk head, LED downlights and gas wall heater
- Immaculate kitchen with gas cooktop and walk-in pantry
- Meals area adjacent kitchen with access through to the verandah
- Light and bright main bathroom
- Separate laundry
- Decked verandah at rear which overlooks the magnificent rear yard
- Sparkling swimming pool, perfect for entertaining friends and family
- Self-contained granny flat offering 4th bedroom with ceiling fan and built-in robe, kitchen and living room with air-conditioner, study nook and bathroom
- Manicured front and rear yards
- Rainwater tank
- Ducted evaporative cooling throughout
- Decked gazebo, a perfect space to enjoy a morning coffee
- Large garage/workshop, perfect for additional storage or the car enthusiast
- Carport with space for 2 cars, plus open spaces for multiple cars
In close proximity to a great variety of early learning centres, public and private schools including Elizabeth East Primary School. Various sporting grounds and parks are all nearby. You are spoilt for choice with many shopping options close by including the Elizabeth City Centre only a stone’s throw away. All of this and easy access to the CBD via the Elizabeth Railway Station.
For further information please contact James Rawkins on 0408 081 826 or 8269 7711 (office).
RLA 200591
The Vendor's Statement (Form 1), the Auction Contract and the Conditions of Sale will be available for perusal by members of the public -
(A) at our office located at 78-80 North East Road, Walkerville SA 5081 for at least 3 consecutive business days immediately preceding the auction; and
(B) at the place at which the auction is to be conducted for at least 30 minutes immediately before the auction commences.
