Modern Two-Story Townhouse in Gated Complex
Welcome to this modern two-story retreat, offering the perfect blend of convenience and comfort. This thoughtfully designed home offers a functional layout, with two bedrooms on the upper level, including a master bedroom with its own private balcony.
Upon entry, the welcoming open living space offers ample room for both daily activities and relaxation. Neutral tones and warm timber-look flooring throughout create a versatile foundation, allowing for easy personalization to suit various tastes.
The kitchen is positioned for ease of use and flows seamlessly to the outdoor courtyard, which provides the perfect spot for outdoor relaxation or enjoying a morning coffee in the fresh air and sunshine. For added practicality, the laundry is conveniently located just steps away from the washing line, along with an additional downstairs toilet, ensuring ease for everyday life.
With a current tenancy in place, this property presents an ideal investment opportunity. Alternatively, you could reap the immediate rental returns until it’s time to call this home your own.
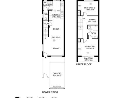
Features that make this home special:
- Main bedroom complete with built in robe, decked balcony and direct access to the shared main bathroom
- Second bedroom also with built in robe
- Main bathroom with shower and toilet
- Cozy study nook
- Open plan living, dining and kitchen with
- Modern kitchen with gas cooktop and stainless steel appliances
- Laundry with trough and provision for a washing machine
- Additional toilet downstairs
- Additional storage under stairs
- Ducted air-conditioning
- Low maintenance rear courtyard with water tank and washing line
- Single carport with roller door providing secure off-street parking for one vehicle
- Currently tenanted for $410 per week until 12th February 2026
Ideally located close to a range of schools, this property is just a few meters from Elizabeth Rise Shopping Centre, with all the shopping and entertainment options at Munno Para Shopping City and Elizabeth City Centre just a short drive away. Enjoy the convenience of being only meters from the popular Smith Creek Walking Trails, and just a 3-minute drive from both Argana Park and Jubilee Park. All this, plus only approximately 40 minutes to the CBD via the Northern Expressway.
All information contained herewith, including but not limited to the general property description, price and the address, is provided to Boffo Real Estate by third parties. We have obtained this information from sources we believe to be reliable; however, we have not verified and do not guarantee its accuracy. The information contained herewith should not be relied upon and you should make your own enquiries and seek advice in respect of this property or any property on this website.
Looking to purchase this property as an investment? Speak to our Property Management team to see how we can assist.
RLA 313174
