Sophisticated Living in a Secure Oasis: 2-Bedroom Townhouse with Modern Comforts!
First Open - Saturday, 20th January at 1.45pm - 2.30pm
Ready to move in straight away. Step into the epitome of stylish living within this immaculate two-bedroom townhouse, nestled securely in a gated complex. The journey begins with a facade that beckons you into a space poised to be your sanctuary.
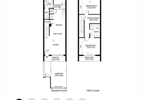
Inside, two generously sized bedrooms await, each thoughtfully equipped with built-in robes to effortlessly meet your storage needs. A neat and tidy bathroom adds a touch of convenience to your daily routines, while the modern kitchen, featuring a gas cooktop and dishwasher, caters to the demands of contemporary living. The open-plan living area seamlessly blends style with functionality, creating an inviting space ideal for both relaxation and entertainment.
Adding practicality to the design, a valuable separate toilet is strategically placed downstairs for enhanced convenience. Enjoy year-round comfort with the inclusion of ducted reverse cycle heating and cooling. The single lock-up garage, complete with an automatic roller door, ensures secure parking, providing you with peace of mind.
This townhouse not only exudes modern elegance but also offers the security and tranquility of a gated community. Transform this stunning, immaculate property into your personal haven, where sophistication effortlessly meets convenience.
Features that make this home special:
- Two good sized bedrooms with built-in robes on the upper level
- Bedroom 1 offering a private balcony
- Study nook on the upper level
- Modern kitchen with gas cooktop, dishwasher and pantry
- Open plan and light-filled living area opening out to the rear courtyard
- Neat and tidy main bathroom
- Additional toilet for added convenience
- Ducted reverse cycle heating and cooling
- Single lock up garage with automatic roller door
- Available now to move in or rent out and reap the rewards
- Expected Rental appraisal of $350-$380 per week
Ideally located close to a variety of schools, all the shopping and entertainment that Munno Para Shopping City and Elizabeth City Centre offer are only a short drive away whilst being metres from the popular Smith Creek Walking Trails. All this and only 40 minutes (approximately) to the CBD via the Northern Expressway.
All information contained herewith, including but not limited to the general property description, price and the address, is provided to Boffo Real Estate by third parties. We have obtained this information from sources we believe to be reliable; however, we have not verified and do not guarantee its accuracy. The information contained should not be relied upon and you should make your own enquiries and seek advice in respect of this property or any property on this website.
RLA 313174
