Renovate or Detonate...Fire-Damaged Property on Generous Block of 1250sqm!!!
This property formerly used for tea parties, weddings and functions, is offering options which cannot be overlooked by the imaginative and creative investor or owner. Set in the area overlooking reserve and neighbourhood which already started transformation initiated by new generation and city expansion projects. Conveniently located just minutes from hospitals, shopping centres, schools, restaurants, public transport and other public facilities. Close to escape routes to nearby Para Wirra National Park and Barossa Valley wine region.
Some of the options you may wish to consider for this property could include (STCC):
- Demolish and subdivide in possible 3 or 4 community blocks or other configuration.
- Demolish and build a brand new home with large backyard on this large allotment.
- Split existing block into two! Keep and renovate existing house at the front and create additional block at the backyard. Or build two new homes on two large blocks if choosing to demolish existing property.
- Renovate and upgrade existing property. Possibility of converting and using the rumpus room as temporary accommodation while renovating.
- Build block of flats or townhouses with access lane.
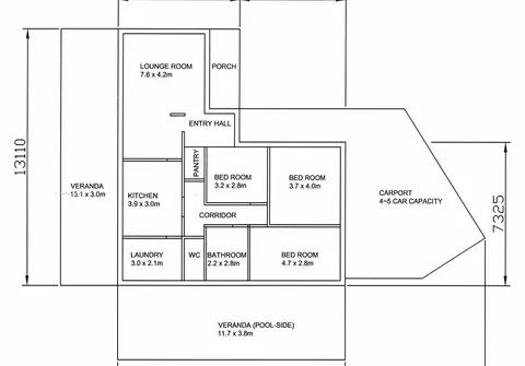
Property currently features older solid built brick veneer house with what appears to be an insignificant damage to hardwood wall studs by fire and ripe for a new roof. Three generous size bedrooms with little damaged hardwood floor boards and mainly smoke damaged bathroom may encourage the possibility for renovation and adding a second shower to go with already existing one shower and two toilets. Large laundry area can also be suitably remodelled and using self-supporting trusses for new roof would allow floor plan remodelling of living areas if desired.
Concreted areas all around the house offer possibility for either visitor or family car parking capacity (10 or more cars) or creating new to your imagination patio, veranda or additional entertaining or living areas. Further to the back of the property is located garage and adjacent rumpus room with next to it roof covered patio with hard-wood decking, overlooking backyard with generous size in-ground pool. There is also additional shed and space for creating children play area or veggie patch.
Whatever your vision may be, it can be done with this property!
For further information or to book an inspection please contact Nikki Lehmann on 0448 199 575 or 8269 7711 (office).
