Modern Comforts and Convenience: Your Ideal Home in Devon Park!
Located in the popular suburb of Devon Park, this three-bedroom home offers a superior ambiance and will appeal to those seeking to embrace the city fringe lifestyle. Spoil yourself with an array of options, from Prospect's chic restaurants to boutique cafes like the local favourite, Frankly Bagels, just a short distance away. Conveniently close to Sam Johnson Sportsground, you'll undoubtedly become the envy of your family and friends with this stunning home!
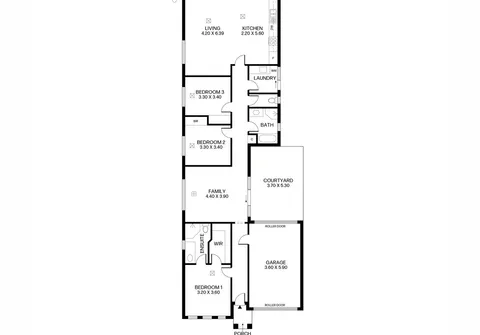
Nestled on a 426sqm (approximately) allotment, this beautifully designed home features quality fixtures and fittings throughout. Its practical floor plan integrates spacious living areas and modern amenities, promising a lifestyle of convenience and low maintenance.
Features that make this home special:
- Master bedroom with ensuite and walk-in robe
- Two good-sized bedrooms, both with built-in robes
- Kitchen featuring ample cupboard space, gas cooktop, and dishwasher alcove
- Light-filled kitchen, dining, and living area with glass sliding doors creating seamless flow through to the outdoor entertaining area
- Separate family room
- Contemporary bathroom with bath and shower
- Separate toilet for added convenience
- Laundry with storage and exterior access
- Paved undercover verandah with low-maintenance rear garden
- Single garage with rear roller door with direct access to courtyard
In close proximity to the Prospect Road shops and cafes, a variety of local private and public schools including Prospect Primary School, Brompton Primary School and St Margaret Mary's School, sporting grounds and public transport options including The O-Bahn. All this and only 4kms (approximately) to North Adelaide, Adelaide Oval Riverbank and 7kms (approximately) to the CBD.
All information contained herewith, including but not limited to the general property description, price and the address, is provided to Boffo Real Estate by third parties. We have obtained this information from sources we believe to be reliable; however, we have not verified and do not guarantee its accuracy. The information contained herewith should not be relied upon and you should make your own enquiries and seek advice in respect of this property or any property on this website.
The Vendor's Statement (Form 1), the Auction Contract and the Conditions of Sale will be available for perusal by members of the public - (A) at our office located at 78-80 North East Road, Walkerville for at least 3 consecutive business days immediately preceding the auction; and (B) at the place at which the auction is to be conducted for at least 30 minutes immediately before the auction commences.
RLA 313174
