A Delight In Dernancourt Overlooking Linear Park!
Welcome to 3 Fir Place Dernancourt, a stunning 1995 double brick Federation Villa situated on a generous allotment of 820sqm (approximate). This well maintained home built by Evonhurst Homes has been lovingly owned by one family and is located in a cul-de-sac comprising of other quality built homes that boasts a very rare blue chip location overlooking Linear Park.
This is an opportunity you do not want to miss out on, the chance to secure a large family home that is located in one of the most sought after locations within the east. It’s as simple as move in, put your feet up, and enjoy the lifestyle the property offers.
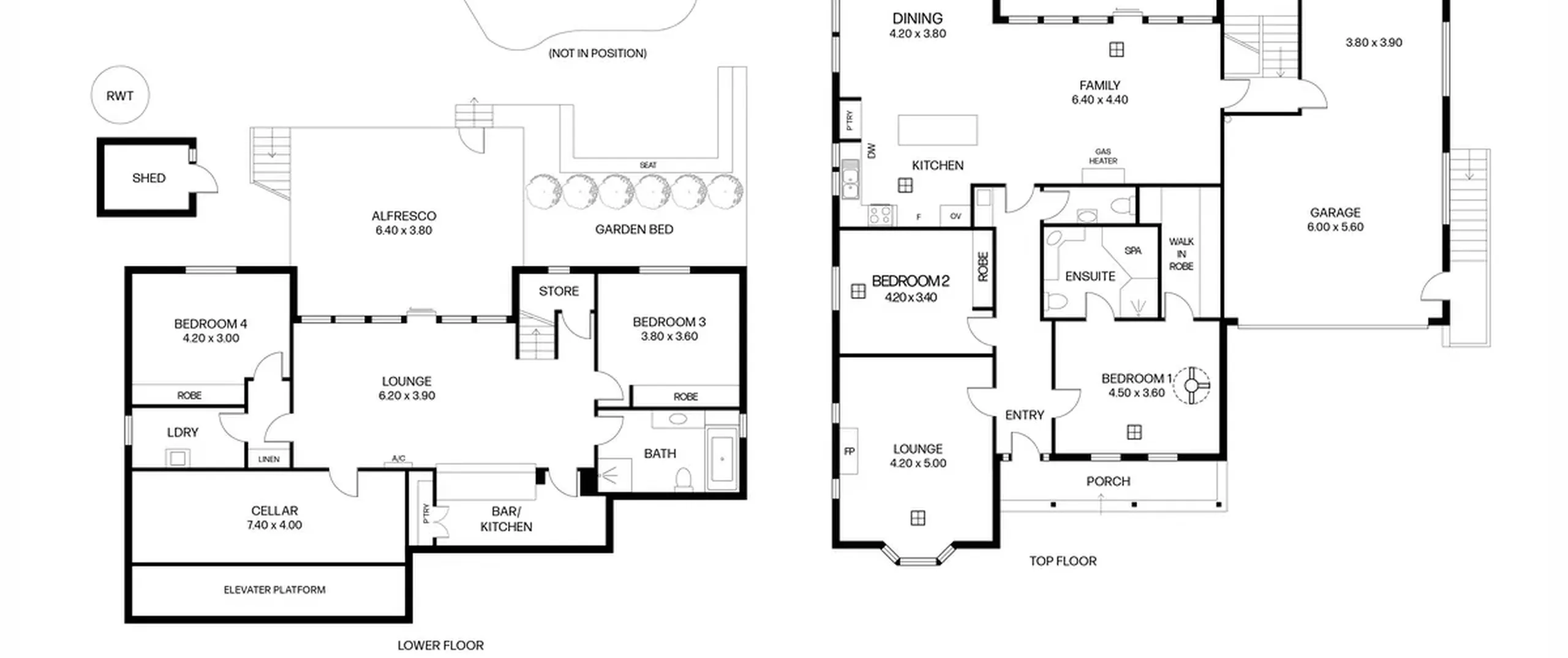
Upon entry, you will be greeted by a spacious and wide grand central hallway, which encapsulates the homes generous 2.7m high ceilings. A formal lounge awaits on the left side of the home, consisting of large bay windows overlooking the manicured gardens and a gas fire place. Making your way up the hallway, you will find the large master bedroom which encompasses an ensuite, spa and huge walk-in robe, whilst the other bedrooms are generous in size and all have built-in robes. As you enter the open plan living area you will be amazed by the views and tranquillity of the home. The quality parquetry floors really accentuate this area, especially as it contrasts with the white Caesar stone bench tops and modern charcoal grey drawers and cabinetry. Adjacent to this is a large open plan lounge room which is perfect for hosting and entertaining guests, located in close proximity to an outdoor entertaining area overlooking the stunning Linear Park reserve. As you arrive outside to one of two undercover outdoor entertaining areas, you will be welcomed by magnificent views of Linear Park. Enjoy a nice cold beverage on a hot summer’s day, all whilst being able to relax either by the pool or in the cosy outdoor oasis as the kids play on the reserve of Linear Park which has direct gate access from the backyard.
Downstairs offers two great sized bedrooms, a large third living area with bar opening up to another undercover entertaining area, generous second bathroom and laundry. Perfect for teenage children to have their own separate space and/or guest room. Additionally, there is a huge rumpus room and/or storage area that could be utilised as a gym or home business with direct external access.
Features that make this home special:
- Large master bedroom with huge walk-in robe and ensuite with spa bath
- All double bedrooms contain built-in robes
- Wide entry hall
- Huge storage area that can be transformed into a rumpus room
- Large formal lounge with gas fire place and bay windows
- Newly renovated kitchen by Wallsmart containing soft close drawers, Caesar stone bench top and double dish drawer dishwasher
- Large open plan living area adjacent to kitchen with stunning view of Linear Park
- Wooden parquetry floors to the upstairs living area
- Additional gas fire place
- Ducted reverse cycle air conditioning upstairs
- Ducted vacuuming throughout the home
- 2 linen press areas with additional under stair storage
- Double glazed windows throughout the home
- 2 undercover entertaining areas with spectacular views of Linear Park
- Split system air conditioner in downstairs living area
- 2.7m ceilings
- Fully irrigated backyard
- Salt chlorinated solar heated pool with a new chlorinator
- Panel lift garage door with space for three cars
- Security system
- 8x solar panels for increased energy efficiency
- NBN connection
Ideally located only seconds away from the Dernancourt shops and close-by to a variety of schools including Kildare College, St Ignatius College, Charles Campbell College, The Avenues R-12 College, Dernancourt Primary School and Athelstone Primary School. Direct connection to public transport options such as the O-Bahn with a 5 minute walk along the reserve to the Paradise Interchange. All of this and only 14km (approximately) to the Adelaide CBD and a short drive to all of the shopping and entertainment options that Tea Tree Plaza has to offer.
Inspection is a must!
For further information please contact Graeme Brown on 0455 111 791, Andrew Tamburrino on 0447 888 177 or 8269 7711 (office).
RLA 200591
The Vendor's Statement (Form 1), the Auction Contract and the Conditions of Sale will be available for perusal by members of the public -
(A) at our office located at 87 North East Road, Collinswood for at least 3 consecutive business days immediately preceding the auction; and
(B) at the place at which the auction is to be conducted for at least 30 minutes immediately before the auction commences.
