Superb 1955 Family Residence in a Tightly Held Location!
With splendid curb appeal, this solid brick, sandstone frontage home; which sits on a generous block of 715sqm (approximate) is positioned perfectly to offer a lifestyle that connects you to both the city and the sea.
Beautiful gardens and a charming porch provide a warm welcome as you arrive. Step inside and immerse yourself in a blend of contemporary and golden age, harmoniously paired to ensure a life of unparalleled comfort, space and natural light.
Soaring ceilings flow overhead whilst gorgeous timber flooring features throughout most of the home, with large windows showcasing the beautiful front and rear gardens.
Features that make this home special:
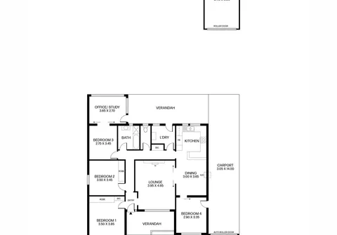
- 4 well-proportioned bedrooms, master and bedroom 2 with built in robes
- Bedroom 3 features a delightful adjoining office/study surrounded by windows to showcase the stunning rear backyard
- Bedroom 4 with both internal and separate external access from the carport
- Formal, light filled lounge with gas heater
- Modern open plan kitchen with ample bench and cupboard space and views to the rear yard
- Spacious dining with reverse cycle air conditioner
- Main bathroom with bath, shower and stained glass window
- Convenient separate toilet
- Spacious laundry with external access
- Freshly painted throughout
- Terrazzo floors to the bathroom, laundry and toilet
- Carpets to master bedroom, bedroom 2, bedroom 4 and office
- Original hardwood floors throughout lounge, kitchen, dining, hallway and bedroom 3
- Blinds to most windows
- Undercover entertainment area
- Undercover carport for 2 cars, lengthwise with auto roller door
- Garage to accommodate a third car or also doubles as a workshop
- Off road parking for an additional 3 vehicles, ideal for your caravan, boat or trailer
- An immense, manicured backyard that offers scope for an extension or a pool!
Cumberland Park shopping facilities are a stone’s throw away for complete convenience. Quality schooling is within easy reach. The tramline is only minutes away meaning city or beach commutes couldn't be simpler. Nearby is the abundance of eateries and entertainment of Goodwood and Unley.
For further information please contact AnnaMaria Varelias on 0487 487 383 or 8269 7711 (office).
All information provided has been obtained from sources we believe to be accurate, however, we cannot provide any guarantee and we accept no liability for any errors or omissions (including but not limited to a property's land size, floor plans and size, building age and condition). Interested parties should make their own inquiries and obtain their own legal advice.
RLA 313174
