Five Units on One Title. Located on a Corner Block of Over 1000sqm!
Truly a rare opportunity, five solid brick two bedroom units constructed in C1974 offering a gross rental return of approximately $70,000 per annum. To be sold as a whole offering a range of attractive options to savvy investors.
Perfectly poised for a stable and secure investment. Whether you are looking to build a new income stream, add to your investment portfolio with a high yielding residential asset or potentially add to your super fund, this fantastic opportunity will not last long!
Set on a 1040sqm (approximate) corner block, the potential future development options are well worth exploring (subject to all necessary consents). Located just 5km (approximate) from the CBD, such a significant corner land holding will surely only become more scarce in the coming years.
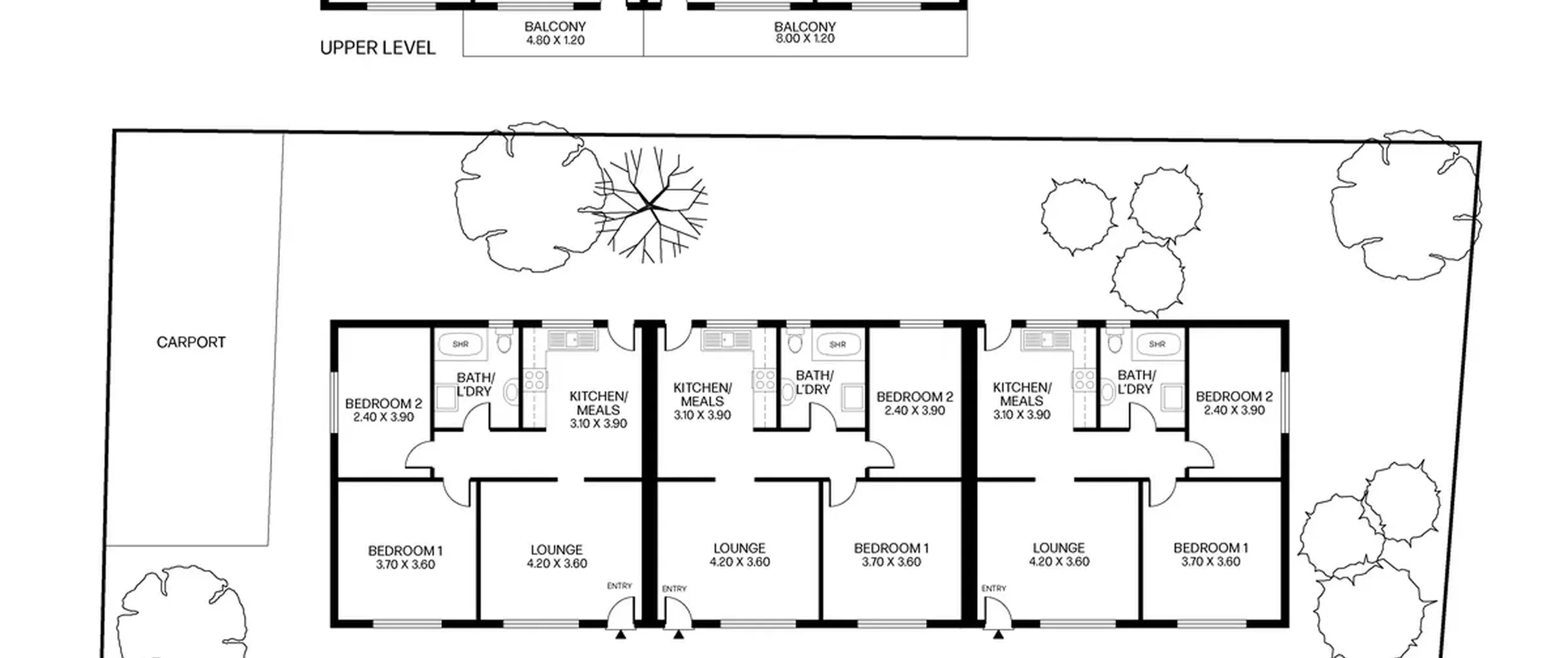
The ground level houses units 1–3 while units 4 and 5 are on the upper level.
Features of the units include:
- Two good sized bedrooms
- Eat-in kitchen with ample cupboard space
- Separate light filled lounge room
- Neat and tidy bathroom with shower/bath and laundry space
- Units 4 and 5 complete with front and rear balcony
- Undercover carport allocated to each unit
- Unit 1 is currently tenanted for $530 per fortnight until 30/05/2022
- Unit 2 is currently tenanted for $560 per fortnight until 07/12/2022
- Unit 3 is currently tenanted for $560 per fortnight until 12/01/2023
- Unit 4 is currently tenanted for $520 per fortnight until 27/01/2022
- Unit 5 is currently tenanted for $560 per fortnight until 27/10/2022
A moment's stroll to the thriving Queen Street, home to cosy café and eateries. An easy train journey to the city, Welland Plaza shopping and the South Road Corridor are all within easy reach.
Please note: Internal photos are of unit 5.
For further information contact Gabriel Titmarsh on 0497 191 000 or 8269 7711 (office).
All information provided has been obtained from sources we believe to be accurate, however, we cannot provide any guarantee and we accept no liability for any errors or omissions (including but not limited to a property's land size, floor plans and size, building age and condition). Interested parties should make their own inquiries and obtain their own legal advice.
The Vendor's Statement (Form 1), the Auction Contract and the Conditions of Sale will be available for perusal by members of the public - (A) at our office located at 78-80 North East Road, Walkerville for at least 3 consecutive business days immediately preceding the auction; and (B) at the place at which the auction is to be conducted for at least 30 minutes immediately before the auction commences.
RLA 200591
