Brand New Home Ready for Modern Living
Be the first to enjoy this impeccable Metricon home completed in 2022. No detail has been overlooked in the creation of this flawless family haven boasting soaring 2.7m ceilings, easy-clean floors and an abundance of natural light for a bright and welcoming feel.
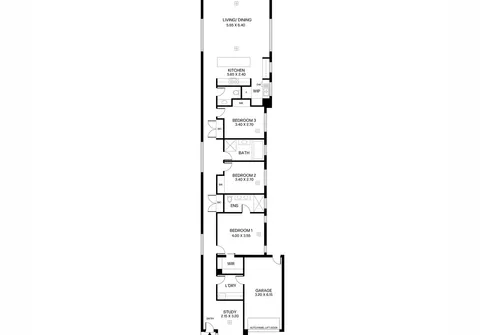
There are three bedrooms and two bathrooms including the master ensuite with double vanities. A study is tucked away at the front of the floorplan and there is an open-plan living and dining space that spills out to the covered alfresco.
Caesarstone benchtops are on show in the kitchen, paired with modern appliances and a walk-in pantry for added storage. There is a breakfast bar where friends can gather as you show off your culinary skills or you can all relax with a drink in hand as the kids play in the fenced yard.
An exposed aggregate driveway leads to the single garage while the list of extra features includes a separate laundry, irrigation to the gardens, a stunning street appeal and plenty of storage throughout.
Features that make this home special:
- Brand new 2022 build by Metricon
- Bedroom 1 offering a walk-in robe and ensuite with double sink vanity and floor to ceiling tiles
- Bedroom 2 and 3 complete with built-in robes
- Study at entrance of home
- Spacious open plan living and dining
- Stylish modern kitchen featuring Ceaserstone benchtops, breakfast bar, walk-in pantry with sink and dishwasher, ample cupboard and bench space and quality stainless steel appliances including 900mm oven
- Contemporary main bathroom with bath, shower and floor to ceiling tiles
- Separate powder room
- Practical laundry with built-in joinery and access to garage
- Ducted air conditioning throughout
- Built-in storage to hallway
- 2.7m high ceilings throughout
- Downlights throughout
- Alfresco entertaining area with outdoor ceiling fan
- Fully fenced, low maintenance yards
- Irrigation to gardens
- Single garage with automatic panel lift door, internal access and external access to backyard
- Modern façade and exposed aggregate driveway
Perfectly located close by to the fantastic Churchill Road shopping precinct including Costco and Aldi, as well as Northpark Shopping Centre and Sefton Plaza. Just a short distance to a variety of quality schools such as St Margaret Mary's School, Prospect Primary School, Brompton Primary School and Tafe SA Regency Campus as well as child care and early learning centres. The Parks Recreation and Sports Centre and Regency Golf Course are also only a short drive away. All this and only 7.5kms (approximate) to the CBD!
For further information please contact Graeme Brown on 0455 111 791, Andrew Tamburrino on 0447 888 177 or 8269 7711 (office).
All information provided has been obtained from sources we believe to be accurate, however, we cannot provide any guarantee and we accept no liability for any errors or omissions (including but not limited to a property's land size, floor plans and size, building age and condition). Interested parties should make their own inquiries and obtain their own legal advice.
The Vendor's Statement (Form 1), the Auction Contract and the Conditions of Sale will be available for perusal by members of the public - (A) at our office located at 78-80 North East Road, Walkerville for at least 3 consecutive business days immediately preceding the auction; and (B) at the place at which the auction is to be conducted for at least 30 minutes immediately before the auction commences.
RLA 200591
