Sweet Courtyard Abode on Surrey Court!
Presenting this sweet three-bedroom, courtyard abode complete with practicality and convenience. Built in 2007 and ideally positioned on a low maintenance 374sqm (approximate) allotment makes this home the perfect purchase for first home buyers, young families, downsizers, and investors alike.
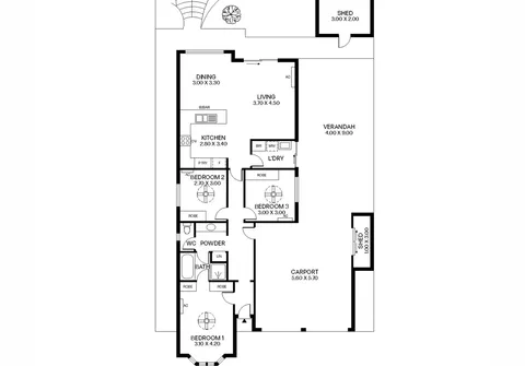
First things first, you are sure to love the double carport offering the convenience of secure and undercover parking as well as the large driveway perfect for additional off-street parking or storing your boat, caravan or trailer.
Inside you will find a convenient floor plan comprising of three bedrooms including the master bedroom that is ideally located at the front of the home. The additional two bedrooms offer built-in robes and the two-way main bathroom is strategically placed to service all bedrooms. The light and open plan kitchen features ample cupboard and bench space plus a gas cooktop, the home cook of the family is sure to be impressed. From here, you can move into the living and dining area which complete the internal layout of the home.
Outside you will enjoy a fully fenced and secure dual level rear yard with an outdoor entertaining space perfect for enjoying quality family time with your nearest and dearest. The outside is also complete with low maintenance landscaping and 2 tool sheds.
Features that make this home special:
- Master suite with built-in robe, direct access to two-way bathroom, ceiling fan and split system air conditioner
- Bedrooms 2 and 3 of good size, both with built-in robes, ceiling fans and split system air conditioners
- Light-filled open-plan living, dining and kitchen with split system air conditioner and sliding doors flowing to the backyard
- Stylish white kitchen complimented by the pastel colour scheme features gas cooktop, pantry and breakfast bar
- Central two-way bathroom with bath, shower and separate toilet and vanity
- Separate laundry with storage and external access
- Gated undercover verandah, perfect for hosting friends and family
- Low-maintenance backyard with tool shed
- 6.6KW Solar electrical system
- Double carport with roller doors, storage/shed and direct access to backyard
All in close proximity to a variety of local shops, parks, schools including Hope Christian College, Craigmore Kindergarten, Playford Primary School and Adelaide North Special School and public transport options. All of this and easy access to the Northern Expressway and just 40 minutes (approximately) from the CBD.
For further information please contact John Ktoris on 0438 945 704 or 8269 7711 (office).
All information provided has been obtained from sources we believe to be accurate, however, we cannot provide any guarantee and we accept no liability for any errors or omissions (including but not limited to a property's land size, floor plans and size, building age and condition). Interested parties should make their own inquiries and obtain their own legal advice.
The Vendor's Statement (Form 1), the Auction Contract and the Conditions of Sale will be available for perusal by members of the public - (A) at our office located at 78-80 North East Road, Walkerville for at least 3 consecutive business days immediately preceding the auction; and (B) at the place at which the auction is to be conducted for at least 30 minutes immediately before the auction commences.
RLA 313174
