Stylish and Fully Renovated Unit in City Fringe Location!
Whether you are starting out, slowing down or looking to invest, this low maintenance modern and stylish home is bound to capture your attention.
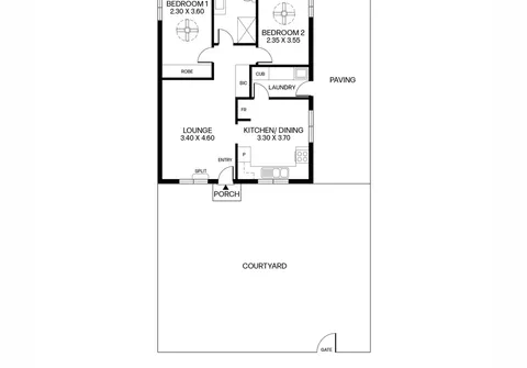
Located amongst a small single storey group, this home has it all. Offering a full renovation, privacy, and security in a great city fringe location. With two bedrooms, an eat in kitchen complete with gas stove top and a generous lounge room for all to enjoy.
Additionally boasting character and charm with high ceilings througout, a feature archway between the kitchen and lounge with plantation shutters to kitchen and lounge. A spacious and secure front garden with lawn area, paved courtyard to the side of the home and carport to the rear.
Features that make this home special:
- Two good sized double bedrooms, bedroom 1 with built-in robe and both complete with ceiling fans
- Stylish eat-in kitchen with gas cooktop, glass splashback, double bowl sink and ample cupboard and bench space
- Light filled lounge room with plantation shutters and floating floorboards
- Modern bathroom with floor to ceiling tiles and seamless glass shower
- Reverse cycle split system air conditioning in the lounge
- Separate laundry with linen storage and external access
- Instant gas hot water service
- Spacious gated and secure front yard to enjoy
- Private rear gated access from carport direct to your yard
- Paved entertaining area
- Tool shed
- Single carport
- NBN connected
You are spoilt for choice being within 200m (approximate) from Collinswood Village offering Drakes Supermarket, a bakery, boutique shops and takeaway options. Close to public transport with bus stops an easy 1 minute walk away. Only a few minutes' drive to multiple shopping centres including the Walkerville Centre, Northpark Shopping Centres. Zoned for the popular Walkerville Primary School. All this and only 5kms (approximately) to the City, North Adelaide shops, cafes, restaurants and to the Adelaide Oval precinct.
For further information please contact Warwick Haseloff on 0499 111 996 or 8269 7711 (office).
All information provided has been obtained from sources we believe to be accurate, however, we cannot provide any guarantee and we accept no liability for any errors or omissions (including but not limited to a property's land size, floor plans and size, building age and condition). Interested parties should make their own inquiries and obtain their own legal advice.
The Vendor's Statement (Form 1), the Auction Contract and the Conditions of Sale will be available for perusal by members of the public - (A) at our office located at 78-80 North East Road, Walkerville for at least 3 consecutive business days immediately preceding the auction; and (B) at the place at which the auction is to be conducted for at least 30 minutes immediately before the auction commences.
RLA 313174
