City Fringe Living!
This well-maintained townhouse is situated in a highly sought City fringe location. Set well back from the road in the quality ‘Franton Court’ group, it offers a private and low-maintenance lifestyle.
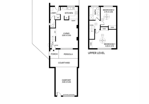
A large downstairs living space with a garden aspect flows through to a light-filled kitchen. Upstairs are two good sized bedrooms together with a neat bathroom. The generous-sized rear yard provides a secure haven and an enclosed carport with auto roller door completes the offering.
Absolutely ideal for first home buyers looking to enjoy all the benefits of a city fringe lifestyle or for someone already living in the area and wanting to downsize but stay close to family and friends. Families will see the benefits of being within highly sought after Primary and Secondary school zones. Equally, investors will also recognise that quality tenants will be attracted to the property.
Features that make this home special:
- Two spacious bedrooms, both complete with built-in robes and ceiling fans
- Good sized lounge with air conditioning for year-round comfort
- Light filled kitchen with gas cook top and ample cupboard and bench space
- Neat bathroom with separate bath and shower
- Valuable laundry space with built-in cupboard and external access
- Downstairs powder room offering a second toilet
- Instant gas hot water system
- Private low maintenance rear yard
- Single carport with automatic roller door
- Within highly sought after Primary and Secondary school zones
Within a short walk of Collinswood Village offering Drakes Supermarket, a bakery, boutique shops and takeaway options. Plenty of nearby entertainment options including hotels and quality coffee shops. Excellent proximity to bus stop on CBD route.
All information provided has been obtained from sources we believe to be accurate, however, we cannot provide any guarantee and we accept no liability for any errors or omissions (including but not limited to a property's land size, floor plans and size, building age and condition). Interested parties should make their own inquiries and obtain their own legal advice.
RLA 313174
