Large Versatile Family Home Offering Style, Elegance and Charm
Classic elegance and style are on show throughout this desirable two storey home that will impress anyone with an eye for attention to detail. The striking facade, covered porch and picket fence add instant character to this one-of-a-kind residence and provide the ideal welcome from the moment you arrive. Set in a lovely tree lined street amongst other quality homes and on a large 682sqm (approximate) allotment, this home provides ample space for the entire family to live and play, whilst also delivering on all the benefits of a city fringe location.
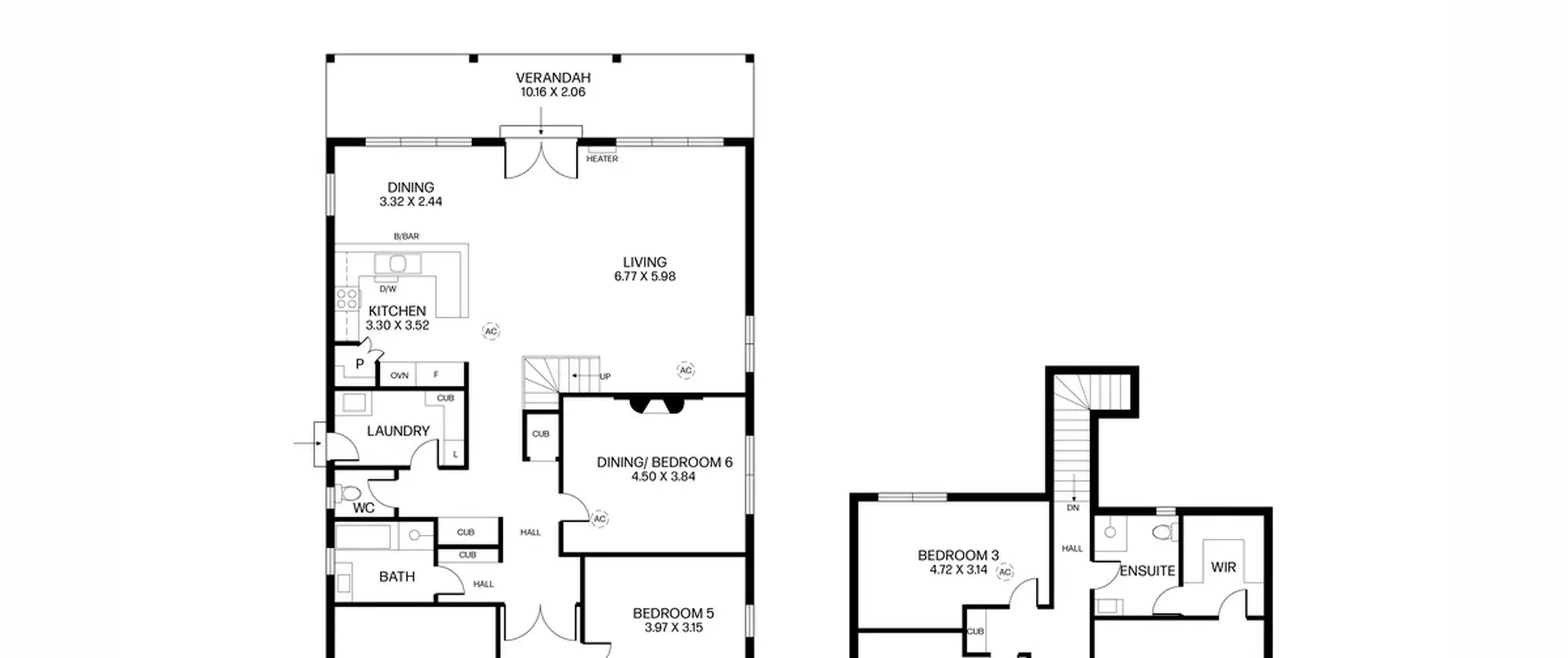
Providing multiple formal and informal living areas, with the heart of the home featuring a spacious open plan kitchen, dining and living area where your family can eat, laugh and relax together with ease. With an additional separate lounge, five bedrooms, formal dining room (or sixth bedroom), two bathrooms, balcony, and plenty of room for outdoor entertaining, this is a home for the entire family to enjoy
Full of sought-after character features including high ceilings with ornate ceiling roses, decorative fireplaces, timber floorboards, and timber staircase; the list goes on. A rare offering for such a property, situated close to all amenities in a prime location, this home is not to be missed!
First floor comprising of:
- Grand master suite with stunning bay window offering ample natural light plus a walk-in robe and two-way ensuite access
- Bedrooms 2 and 3 of good size
- Built-in cupboard to hallway for additional storage
- Private balcony to sit and relax after a long day
Ground floor comprising of:
- Well-sized bedrooms 4 and 5; bedroom 4 featuring beautiful ornate fireplace
- Formal lounge room with decorative fireplace, air conditioner and plenty of natural light from the endearing bay window
- Dining room or optional 6th bedroom with feature fireplace
- Bright open-plan living, dining and kitchen, complete with wall heater and French doors opening to the verandah
- Spacious kitchen with breakfast bar, stainless steel appliances including dishwasher, a large pantry, ample cupboard space and sweeping benchtops
- Sparkling main bathroom with separate bath and shower + separate toilet for added convenience
- Large laundry with plenty of built-in cupboards and external access
- Spacious outdoor area with verandah, perfect for hosting guests
- Large family friendly lawned area and easy to maintain gardens
- Detached double garage via gated drive through access
- Long driveway with secure off-street parking for multiple cars
- Charming character facade with beautifully landscaped front gardens, and traditional picket fence
Additional features include:
- High ornate ceilings throughout
- Polished timber flooring to the front of the home
- Stained glass front door
- Ducted evaporative cooling throughout
- Security system
- Ample storage and cupboards throughout the home
- Original 1925 character home with mid 1990s extensions
Within a short drive to all of the restaurants and cafes of O’Connell St and cosmopolitan Prospect Road. Walking distance to Collinswood shopping centre and only a few minutes' drive to Sefton Plaza and Northpark Shopping Centres, and the Adelaide Oval precinct. Handy to public transport and only 5kms (approximately) to the City centre.
Located close to Walkerville and St Andrew’s Primary schools, and within the sought after Adelaide High School and Adelaide Botanic High School zones.
For further information please contact Graeme Brown on 0455 111 791, Ben Krieg on 0447 888 177 or 8269 7711 (office).
All information provided has been obtained from sources we believe to be accurate, however, we cannot provide any guarantee and we accept no liability for any errors or omissions (including but not limited to a property's land size, floor plans and size, building age and condition). Interested parties should make their own inquiries and obtain their own legal advice.
The Vendor's Statement (Form 1), the Auction Contract and the Conditions of Sale will be available for perusal by members of the public - (A) at our office located at 78-80 North East Road, Walkerville for at least 3 consecutive business days immediately preceding the auction; and (B) at the place at which the auction is to be conducted for at least 30 minutes immediately before the auction commences.
RLA 313174
