Easy-Care Living in an Unmatched Location!
Your new home awaits, superbly positioned on the wide, peaceful, tree-lined Harrow Road. This well-maintained residence occupies a coveted spot in the prestigious blue-chip suburb of College Park, just 4km (approximately) from the CBD.
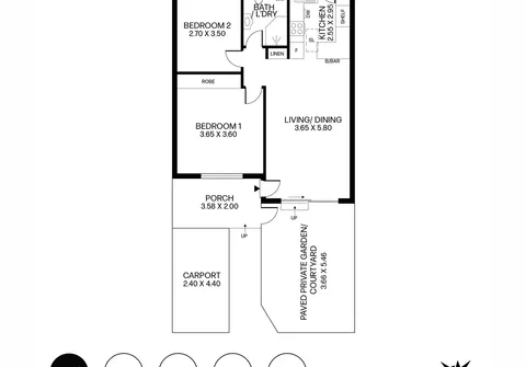
Opening into a light-filled, open-plan living and dining area, the home is complemented by a kitchen that overlooks the space and flows out to a private, low-maintenance courtyard. Two bedrooms with built-in robes are serviced by a central bathroom, while a second courtyard at the front provides the perfect spot to enjoy your morning coffee in the fresh air with a Northern aspect.
First-home buyers will value this as an ideal entry-level opportunity in a highly sought-after city-fringe location, while investors will be drawn to the area’s strong historical rental returns and capital growth.
Features that make this home special:
- Two bedrooms complete with built-in robes
- Light filled, open plan living and dining area
- Modern kitchen with gas cooktop and dishwasher
- Bathroom with shower and laundry facilities
- Split system air-conditioner
- Private rear courtyard
- Additional paved, private garden/courtyard at the front
- Single carport
- Currently tenanted for $480/week on a periodic lease
Located a short distance from popular cafes, restaurants and shopping at the Avenues Shopping Centre, The Parade Norwood and Melbourne Street. In close proximity to sporting facilities, public transport options and some of Adelaide's finest schools including St Peter's College and East Adelaide Primary.
All information contained herewith, including but not limited to the general property description, price and the address, is provided to Boffo Real Estate by third parties. We have obtained this information from sources we believe to be reliable; however, we have not verified and do not guarantee its accuracy. The information contained should not be relied upon and you should make your own enquiries and seek advice in respect of this property or any property on this website.
Looking to purchase this property as an investment? Speak to our Property Management team to see how we can assist.
RLA 313174
