Exclusive Opportunity
Opportunities like this don't come around often! Set on a large 744sqm (approximate) allotment with a 19.8m (approximate) frontage and backing onto Linear Park and neighbouring another small park in the elite suburb of College Park, this home offers the new owner a multitude of options including: renovate and add your own personal touches, rent out and reap the rewards or redevelop (subject to council consent).
Astute buyers will surely be impressed with this rare opportunity to secure such a prime piece of land in a premier location.
Features that make this home special:
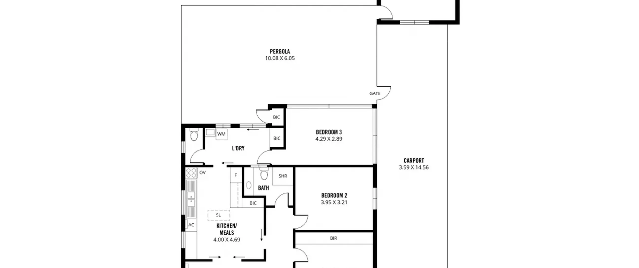
- Three spacious bedrooms, bedroom 1 with built-in robes
- Light filled living area with split-system air conditioner and gas heater
- Original timber kitchen
- Eat-in meals area
- Neat and tidy bathroom
- Separate laundry and toilet
- Pergola, ideal for outdoor entertaining
- Detached studio
- Separate workshop
- Fully fenced rear yard
- Triple-length carport with roller door
The exclusive suburb of College Park is just moments from some of South Australia's most sought-after elite private schools including St Peter's College, Prince Alfred College & St Andrew School. In close proximity also to The Conservatory, Parklands, Botanical Gardens, the boutique village attractions of The Parade & Magill Road's excellent shopping district. This prestigious location offers beautiful tree lined avenues, close proximity to the Walkerville Shopping Village, The Avenues Shopping Village, Lower North Adelaide precinct, The Lion Hotel, Linear Park & bike trails. Zoned for Walkerville Primary and East Adelaide Primary.
Nearby to the beautiful Linear Park. Relish the convenience of being just a stone's throw to beautiful Linear Park, North Adelaide and the Adelaide Oval Riverbank precinct, and the CBD.
For further information please contact Jacob Lanning on 0417 876 879 or 8269 7711 (office).
RLA 200591
The Vendor's Statement (Form 1), the Auction Contract and the Conditions of Sale will be available for perusal by members of the public -
(A) at our office located at 87 North East Road, Collinswood for at least 3 consecutive business days immediately preceding the auction; and
(B) at the place at which the auction is to be conducted for at least 30 minutes immediately before the auction commences.
