Add Value and Prosper to this Generously Sized Block!
Set on an enviable 836sqm (approximate) allotment, with substantial 18.29m frontage and 45.72m depth (both approximate), this home offers loads of potential for one lucky purchaser!
Located in the Port Adelaide Enfield council and zoned General Neighbourhood this traditional sized allotment will appeal to buyers on the hunt for fantastic near city living.
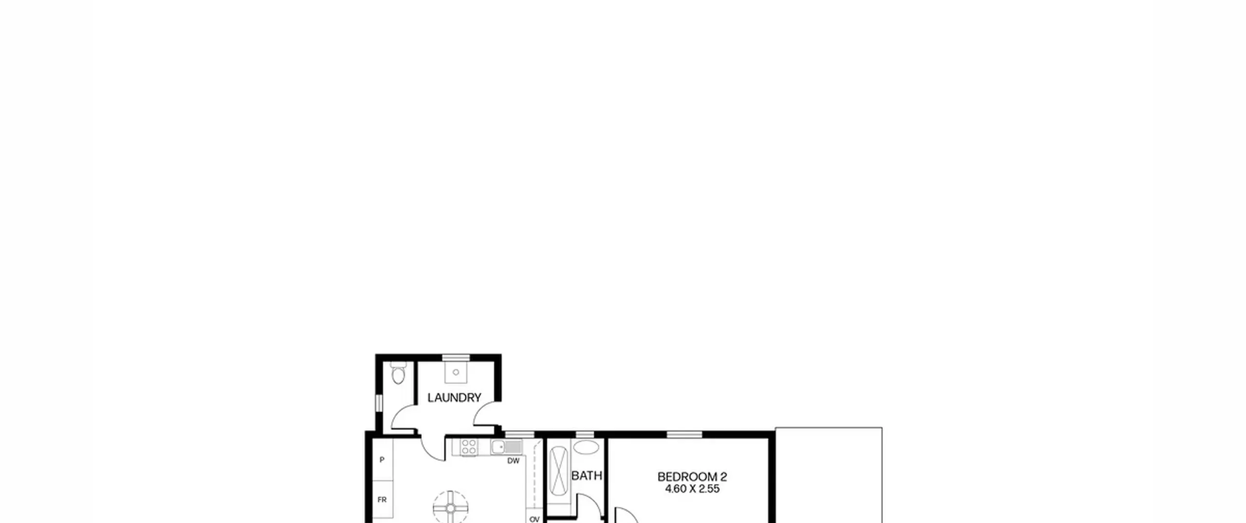
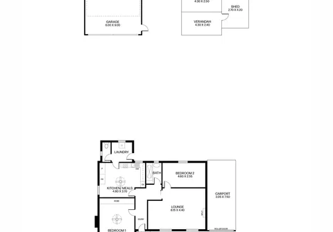
A neat solid brick home is currently onsite. Offering 2 bedrooms, huge lounge room and an eat in kitchen, it would respond well to some cosmetic upgrades. With a large 6m x 9m garage (approximately) with power and mezzanine floor that could suit a variety of purposes, together with a secure carport with roller door and a host of ancillary shedding, this property is a great choice as a home to move into.
Alternatively with the outstanding block dimensions and favourable zoning this could well be the perfect site to build a dream home or undertake a development project (both subject to consents). All around are high quality new built homes. Some on sub divided blocks and some as single dwellings on traditional sized allotments. Family friendly and vibrant, this is an area that people love to live in!
Features that make this property special:
- 836sqm block (approximate)
- 18.29m frontage (approximate)
- 45.72m depth (approximate)
- Port Adelaide Enfield Council area
- House built in circa 1953
- Two bedrooms; bedroom one with ceiling fan and built-in robe
- Huge lounge room with split system air conditioner
- Eat in kitchen with ceiling fan, dishwasher and gas cooktop
- Bathroom with separate toilet for added convenience
- Separate laundry with rear yard access
- Secure carport with roller door
- Double garage in rear yard (6.00m x 9.00m approximately) with Mezzanine above
- Garden shed and store room
Superbly located only 12.2kms (approximately) from the Adelaide CBD and only under 10 minutes away from all the shopping that Lightsview Village, Northgate Shopping Centre and Sefton Plaza has to offer. Within walking distance to local shops, café’s and a variety of local parks. Additionally in close proximity to a variety of excellent public and private schools, including St Gabriel’s School, Roma Mitchell Secondary College and Northfield Primary School.
All information contained herewith, including but not limited to the general property description, price and the address, is provided to Boffo Real Estate by third parties. We have obtained this information from sources we believe to be reliable; however, we have not verified and do not guarantee its accuracy. The information contained should not be relied upon and you should make your own enquiries and seek advice in respect of this property or any property on this website.
Looking to purchase this property as an investment? Speak to our Property Management team to see how we can assist.
RLA 313174
