Solid Brick Family Home on a 738sqm Allotment!
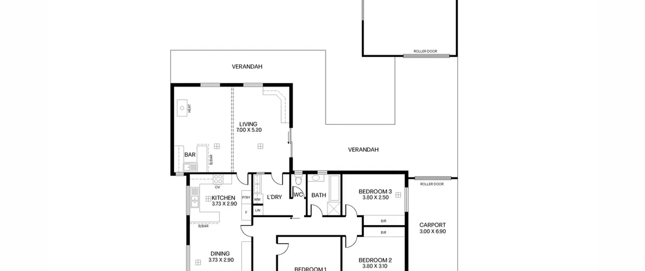
An exceptionally well maintained solid brick family home, offering two spacious living areas and a floorplan sure to appeal to families seeking a home ready for their personal touch but also immediately liveable as is.
Set on a 738sqm (approximate) block with a wide 17.68m (approximate) frontage and a 41.76m (approximate) depth, offering endless future potential for the new owner.
A perfect fit for those buyers seeking a traditional sized block in a great near City location, those looking to capitalise on the generous frontage to build your dream home, equally perfect for investors looking to rent out and reap the rewards. Attractive subdivision options may also exist (subject to all necessary consents).
Additionally providing a good sized rear yard with scope to create your own outdoor oasis, while the large garage and retreat provides options to use as a workshop, studio, games room or for the storing of vehicles.
Please note: This home is being sold via auction on the same day as the adjoining properties located at 43 Ayredale Avenue, Clearview and 34 High Avenue, Clearview.
This offers an incredible opportunity for one buyer to acquire a significant combined land holding of approximately 2375sqm (approximately)!
43 Ayredale Avenue, Clearview (Adjoining property at rear) - Auction 28th of November at 2pm.
34 High Avenue, Clearview (Neighbouring property) - Auction 28th of November at 3pm.
Features that make this home special:
- Three good sized bedrooms, bedrooms 2 and 3 with built-in robes
- Formal lounge with heater
- Large second living room with bar and heater
- Timber kitchen with ample storage space and breakfast bar
- Dining area adjacent kitchen
- Original bathroom with separate shower and bath + separate toilet
- Separate laundry
- Verandah, perfect for outdoor entertaining
- Single carport with drive through access to garage
- Spacious rear yard with garage
- External retreat/store room with kitchenette
Conveniently located close to Northgate and Northpark Shopping Centres for your weekly shopping requirements. Local schools such as Enfield Primary School, St Martin’s Primary School and Roma Mitchell Secondary College are all easily accessed in the immediate area. Public transport is a short walk to Hampstead Road or Main North Road.
For further information contact Gabriel Titmarsh on 0497 191 000 or 8269 7711 (office).
All information provided has been obtained from sources we believe to be accurate, however, we cannot provide any guarantee and we accept no liability for any errors or omissions (including but not limited to a property's land size, floor plans and size, building age and condition). Interested parties should make their own inquiries and obtain their own legal advice.
The Vendor's Statement (Form 1), the Auction Contract and the Conditions of Sale will be available for perusal by members of the public - (A) at our office located at 78-80 North East Road, Walkerville for at least 3 consecutive business days immediately preceding the auction; and (B) at the place at which the auction is to be conducted for at least 30 minutes immediately before the auction commences.
RLA 200591
